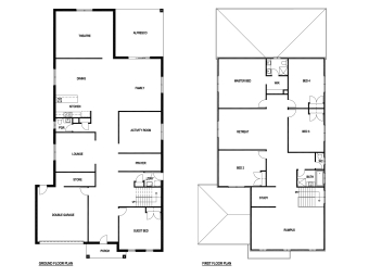
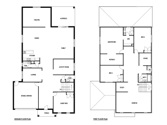
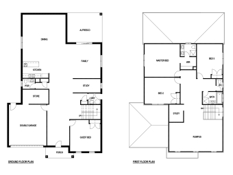
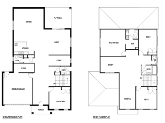
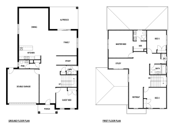
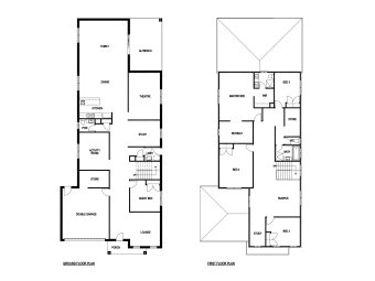
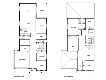
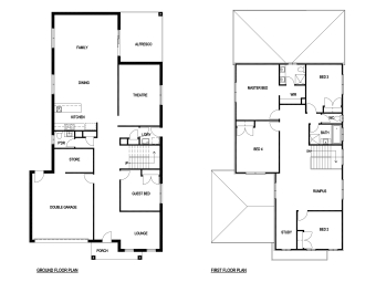
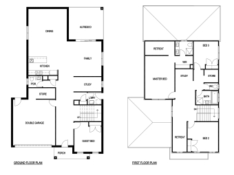
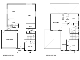
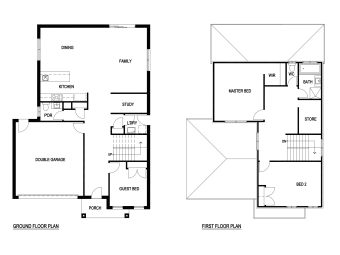
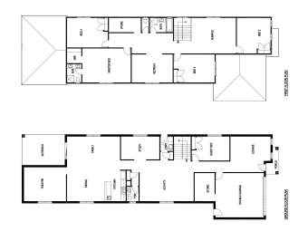
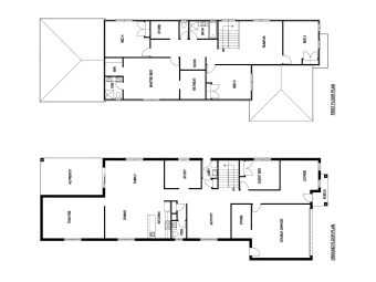
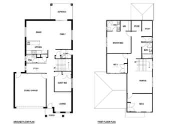
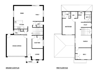
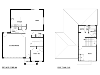
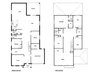
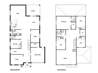
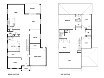
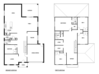
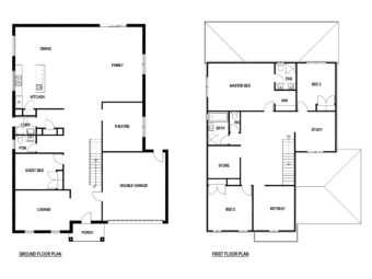
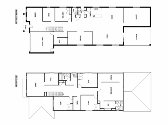
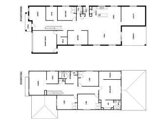
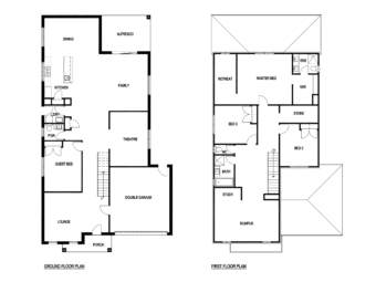
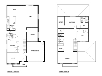
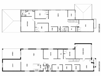
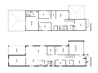
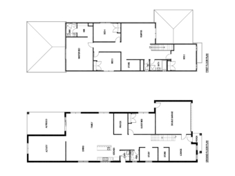
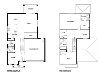
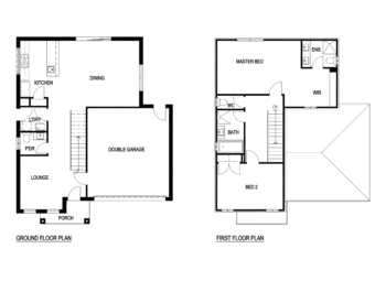
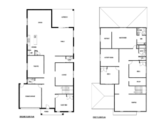
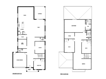
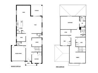
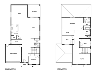
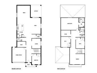
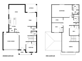
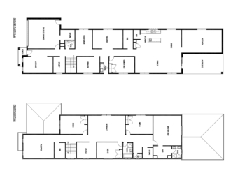
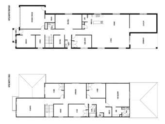
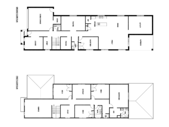
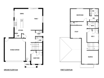
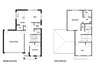
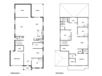
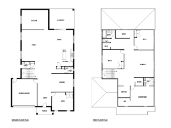
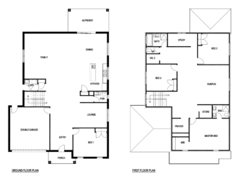
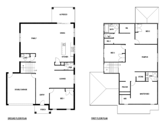
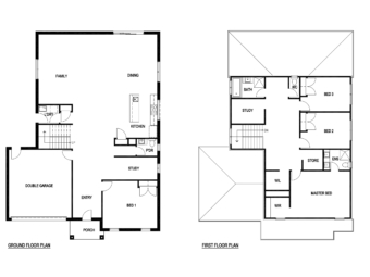
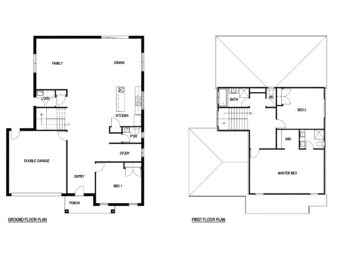
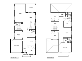
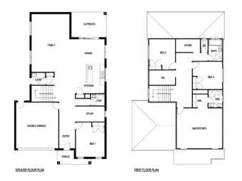
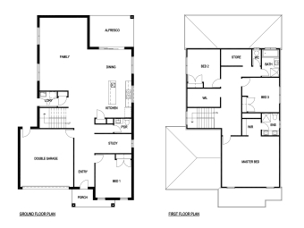
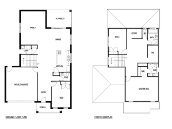
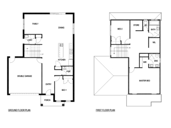
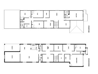
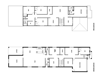
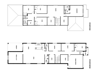
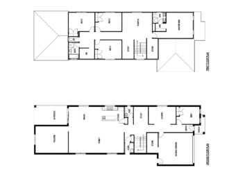
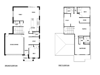
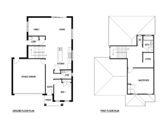
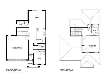
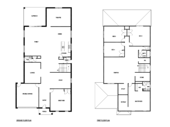
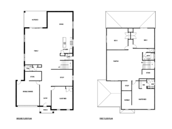
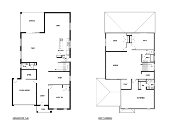
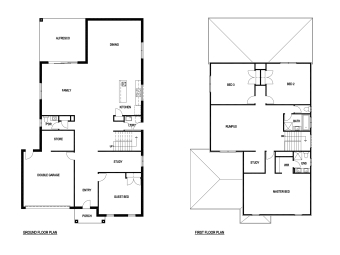
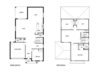
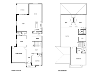
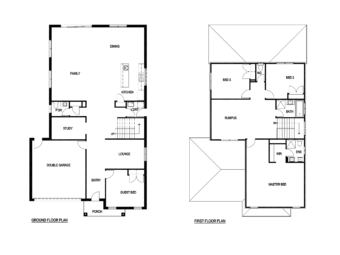
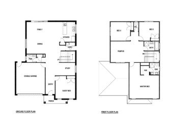
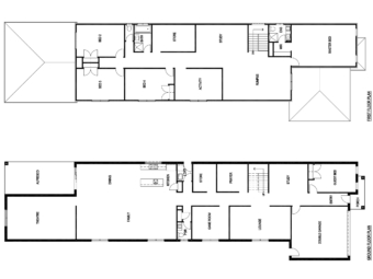
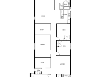
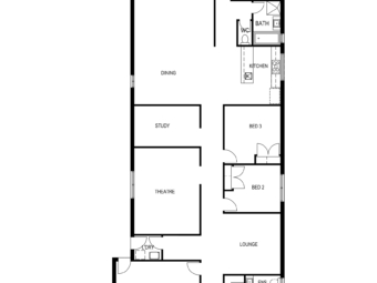
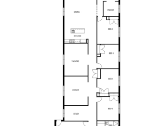
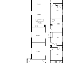
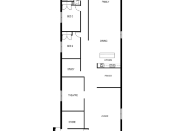
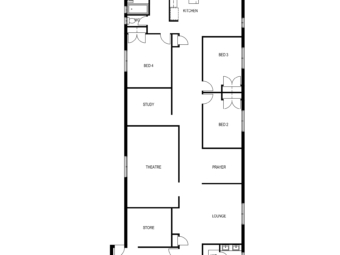
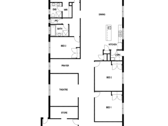
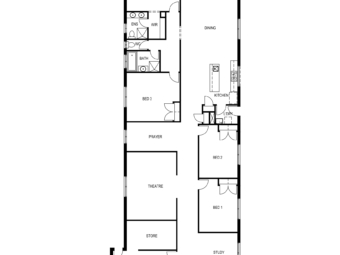
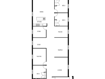
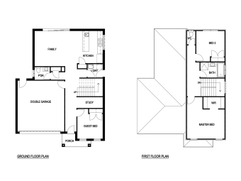
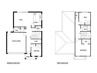
STANDARD HOUSES
A standard home is a new, move-in-ready home.
These are houses that are built before a home buyer makes a purchase.
We offer standard homes because not every homebuyer has five to six months to wait for their new dream home to be built.
For buyers who do not have the time to wait or simply aren’t interested in the construction process, standard homes are a convenient option!
Select the Storey
Lot Width (Meter)
Lot Depth (Meter)
Home Size (Sqs)
- All
- 12-20 sqs (SS)
- 12.5 Meter (SW)
- 12.5 Meter (SW)
- 14 Meter (SW)
- 14 Meter (SW)
- 16 Meter (SW)
- 16 Meter (SW)
- 20-25 Sqs (SS)
- 22 meter (SD)
- 25-30 Sqs (SS)
- 28 meter (SD)
- 30 meter (SD)
- 30-35 sqs (SS)
- 32 meter (SD) 20-24
- 34 meter (SD) 24-28
- 35-40 sqs (SS)
- 36 meter (SD) 28-30
- 38 meter above (SD) Above 30
- 40-45 sqs (SS)
- 45-50 sqs (SS)
- 50-55 sqs (SS)
- 55-60 sqs (SS)
- 60 Above (SS)
- Below 20 meter (SD) below 20
- Depth Standard
- DOUBLE STOREY STANDAR
- SINGLE STOREY STANDARD















































































































































































































