HARBOUR 35
From: $ 499,611
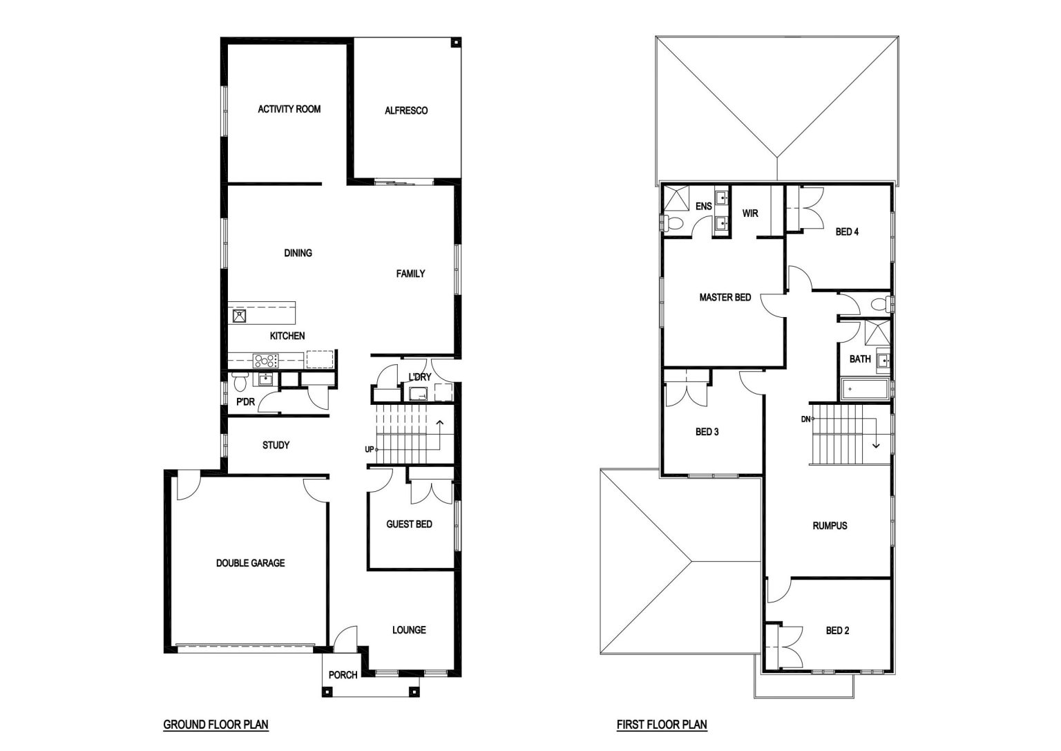
| Home Dimensions | |
| House Area | 270.62m2 (29.13 sqr.) |
| Garage Area | 36.24 m2 (3.90 sqr.) |
| Portico | 3.65 m2 (0.39 sqr.) |
| Alfresco | 14.63 m2 (1.57 sqr.) |
| Total Area | 325.14 m2 (35.00 sqr.) |
| House Width | 10.50 m |
| House Length | 23.29 m |
| Minimum Block Width | 12.50 m |
| Room Dimensions | |
| Family | 5.96m x 2.95m |
| Dining | 4.11m x 3.89m |
| Master Bed | 4.51m x 4.24m |
| Guest Bed | 3.00m x 3.00m |
| Bed 2 | 3.20m x 3.83m |
| Bed 3 | 3.11m x 3.50m |
| Bed 4 | 3.67m x 3.09m |
| Lounge | 3.50m x 3.04m |
| Activity | 4.89m x 4.22m |
| Rumpus | 3.94m x 4.43m |
| Double Garage | 6.00m x 5.50m |
