DIMORA 55
From: $ 647,949
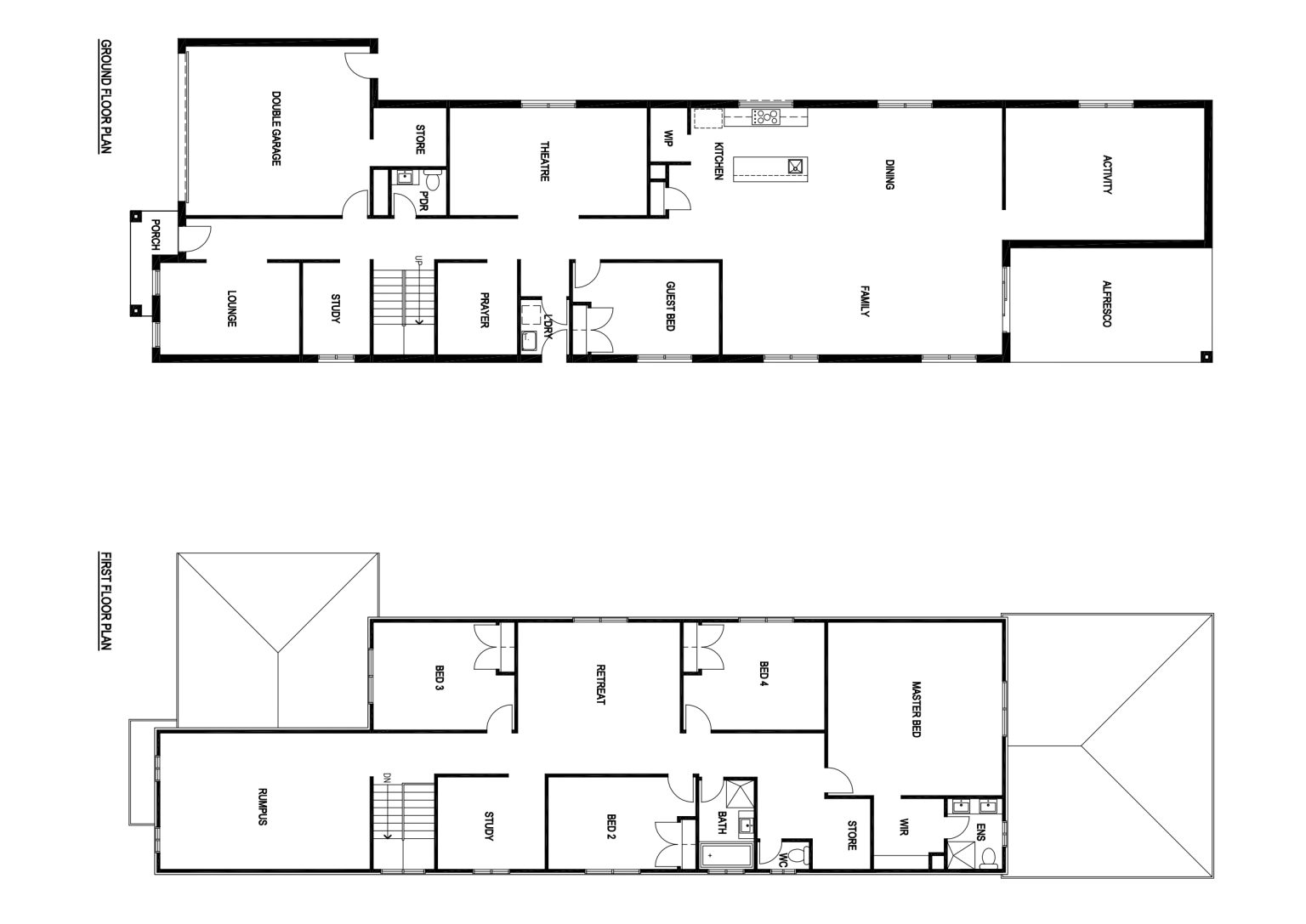
| Home Dimensions |
| House Area | 446.68 m2 (48.08 sqr.) |
| Garage Area | 36.24 m2 (3.90 sqr.) |
| Portico | 3.62 m2 (0.39 sqr.) |
| Alfresco | 24.40 m2 (2.63 sqr.) |
| Total Area | 510.94 m2 (55.00 sqr.) |
| House Width | 10.50 m |
| House Length | 35.10 m |
| Minimum Block Width | 12.50 m |
| Room Dimensions |
| Family | 9.10m x 4.43m |
| Dining | 6.33m x4.30m |
| Master Bed | 5.68m x 5.63m |
| Guest Bed | 4.17m x 3.00m |
| Bed 2 | 4.20m x 3.00m |
| Bed 3 | 4.00m x 3.50m |
| Bed 4 | 4.00m x 3.50m |
| Lounge | 4.54m x 3.09m |
| Rumpus | 6.83m x 4.43m |
| Theatre | 6.42m x 3.50m |
| Activity | 6.47m x 4.30m |
| Retreat | 5.28m x 3.50m |
| Double Garage | 6.00m x 5.50m |