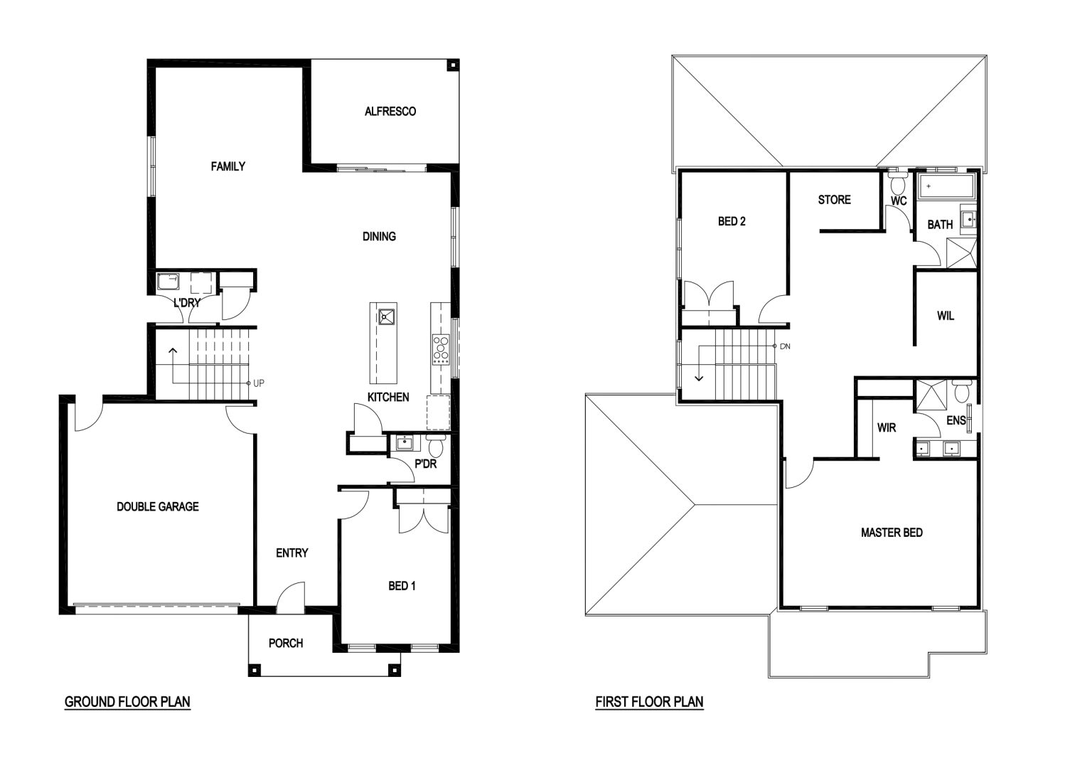
| Home Dimensions | |
| House Area | 222.81 m2 (23.98 sqr.) |
| Garage Area | 36.38 m2 (3.92 sqr.) |
| Portico | 5.97 m2 (0.64 sqr.) |
| Alfresco | 13.53 m2 (1.46 sqr.) |
| Total Area | 278.71 m2 (30.00 sqr.) |
| House Width | 11.81 m |
| House Length | 18.21 m |
| Minimum Block Width | 14.00 m |
| Room Dimensions | |
| Family | 5.97m x 4.35m |
| Dining | 3.85m x 4.38m |
| Master Bed | 4.30m x 5.74m |
| Bed 1 | 4.00m x 3.25m |
| Bed 2 | 3.94m x 3.10m |
| Double Garage | 6.00m x 5.50m |