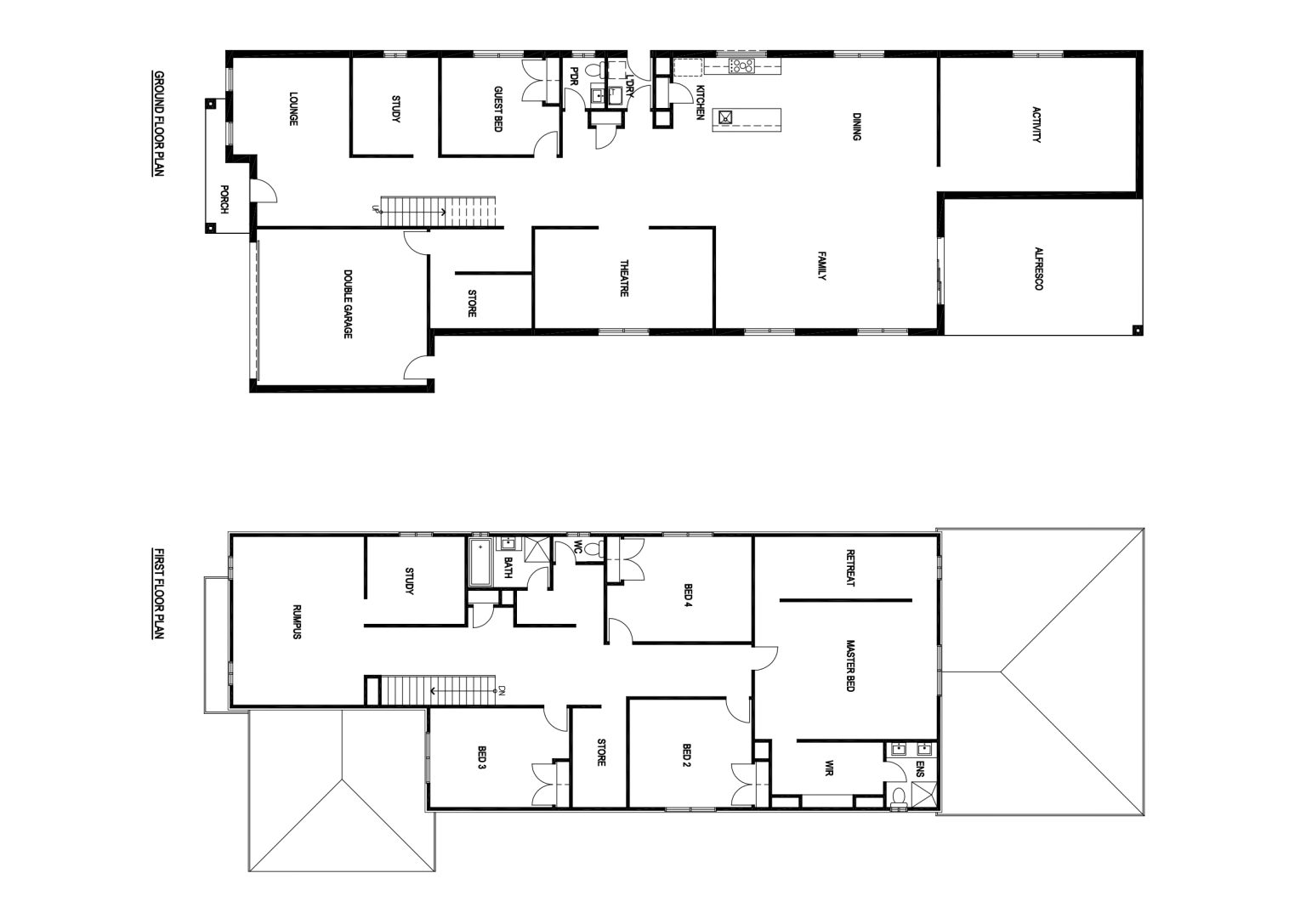
TIERRA 60
From: $692,992
| Home Dimensions |
| House Area | 482.18 m2 (43.04 sqr.) |
| Garage Area | 36.24 m2 (3.90 sqr.) |
| Portico | 5.43 m2 (0.58 sqr.) |
| Alfresco | 33.50 m2 (3.60 sqr.) |
| Total Area | 557.40 m2 (60.00 sqr.) |
| House Width | 12.00 m |
| House Length | 32.91 m |
| Minimum Block Width | 14.00 m |
| Room Dimensions |
| Family | 7.79m x 4.80m |
| Dining | 5.49m x 3.82m |
| Master Bed | 6.42m x 4.84m |
| Guest Bed | 3.56m x 3.42m |
| Bed 2 | 4.31m x 3.80m |
| Bed 3 | 4.31m x 3.50m |
| Bed 4 | 4.50m x 3.70m |
| Theatre | 6.26m x 3.50m |
| Lounge | 4.11m x 3.42m |
| Activity | 6.89m x 4.72m |
| Rumpus | 4.62m x 5.93m |
| Retreat | 6.42m x 2.20m |
| Double Garage | 6.00m x 5.50m |