TIERRA 40
From: $ 533,180
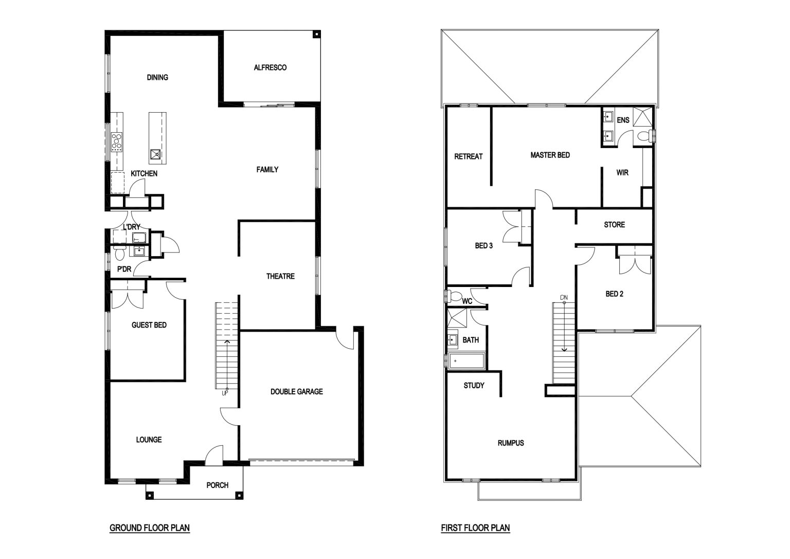
| Home Dimensions | |
| House Area | 315.22 m2 (33.93 sqr.) |
| Garage Area | 36.24 m2 (3.90 sqr.) |
| Portico | 5.28 m2 (0.56 sqr.) |
| Alfresco | 14.86 m2 (1.60 sqr.) |
| Total Area | 371.63 m2 (40.00 sqr.) |
| House Width | 12.00 m |
| House Length | 21.74 m |
| Minimum Block Width | 14.00 m |
| Room Dimensions | |
| Family | 5.23m x 4.50m |
| Dining | 3.56m x 5.02m |
| Master Bed | 4.65m x 5.04m |
| Guest Bed | 4.03m x 3.42m |
| Bed 2 | 3.30m x 3.50m |
| Bed 3 | 3.50m x 3.30m |
| Theatre | 5.00m x 3.50m |
| Lounge | 4.50m x 3.42m |
| Rumpus | 3.80m x 5.93m |
| Retreat | 4.65m x 2.00m |
| Double Garage | 6.00m x 5.50m |
