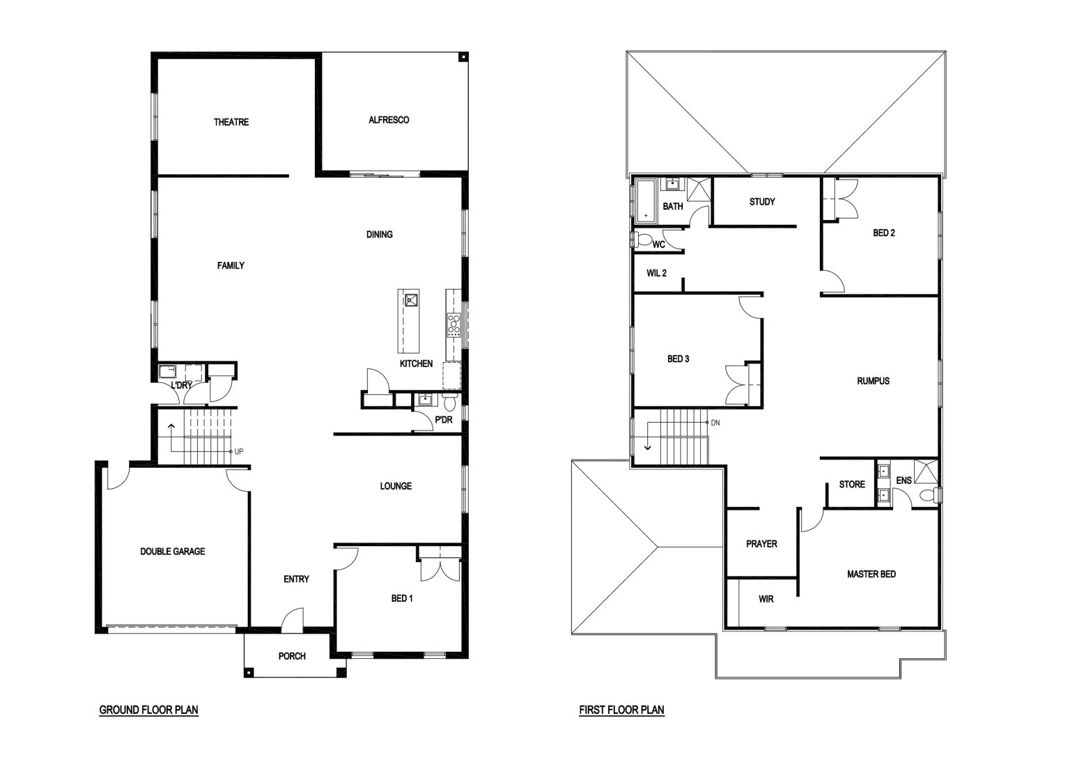
EDIFACE 50
| Home Dimensions | |
| House Area | 398.02 m2 (42.84 sqr.) |
| Garage Area | 36.38 m2 (3.92 sqr.) |
| Portico | 5.74 m2 (0.62 sqr.) |
| Alfresco | 24.47 m2 (2.63 sqr.) |
| Total Area | 464.55 m2 (50.00 sqr.) |
| House Width | 14.00 m |
| House Length | 23.45 m |
| Minimum Block Width | 16.00 m |
| Room Dimensions | |
| Family | 6.91m x 5.76m |
| Dining | 4.20m x5.76m |
| Master Bed | 4.40m x 5.22m |
| Bed 1 | 3.39m x 4.71m |
| Bed 2 | 4.40m x 3.74m |
| Bed 3 | 4.21m x 4.16m |
| Lounge | 4.05m x 4.80m |
| Rumpus | 6.00m x 6.57m |
| Theatre | 4.36m x 5.92m |
| Double Garage | 6.00m x 5.50m |
