CAPANNA 35
From: $ 419,036
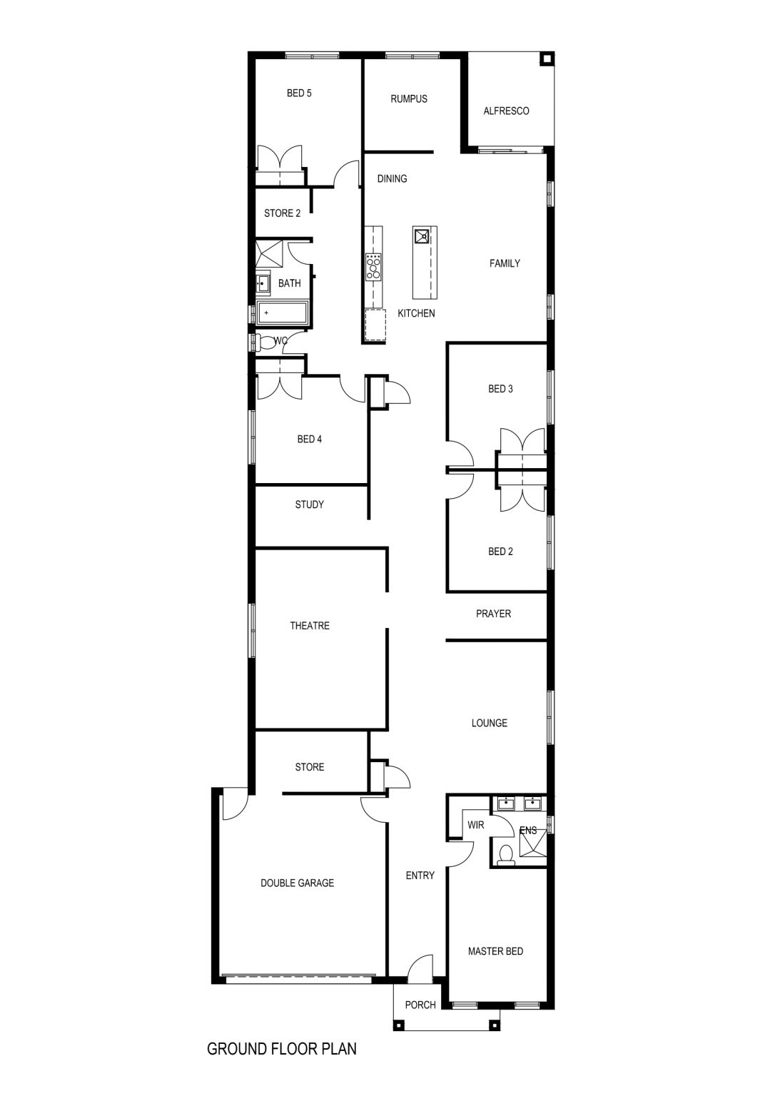
| Home Dimensions |
| House Area | 276.42 m2 (29.75 sqr.) |
| Garage Area | 36.05 m2 (3.88 sqr.) |
| Portico | 3.83 m2 (0.41 sqr.) |
| Alfresco | 8.89 m2 (0.96 sqr.) |
| Total Area | 325.19 m2 (35.00 sqr.) |
| House Width | 11.30 m |
| House Length | 32.29 m |
| Minimum Block Width | 12.50 m |
| Room Dimensions |
| Family | 4.20m X 3.63m |
| Dining | 3.00m X 6.03m |
| Lounge | 4.20m X 3.33m |
| Master Bed | 3.70m X 3.24m |
| Bed 2 | 3.50m X 3.24m |
| Bed 3 | 3.50m X 3.24m |
| Bed 4 | 3.80m X 3.70m |
| Bed 5 | 3.58m X 3.50m |
| Theatre | 5.40m X 4.30m |
| Rumpus | 3.03m X 3.18m |
| Study | 2.00m X 3.70m |
| Prayer | 1.84m X 3.30m |
| Store | 1.70m X 3.70m |
| Store 2 | 2.21m X 1.80m |
| Double Garage | 6.00m X 5.50m |