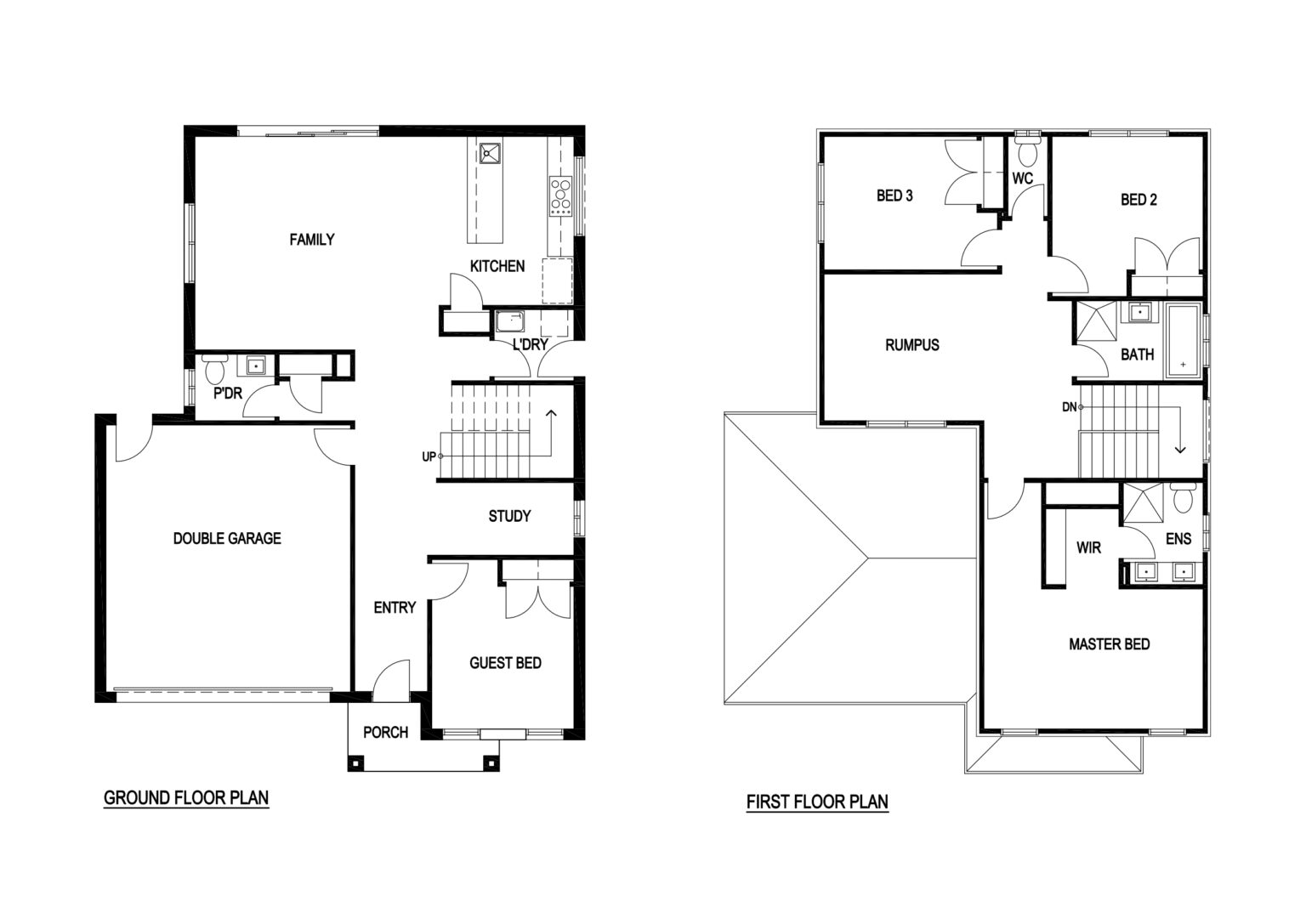
HACIENDA 25
From: $ 413,195
| Home Dimensions | |
| House Area | 192.21 m2 ( 20.69 sqr.) |
| Garage Area | 36.24 m2 (3.90 sqr.) |
| Portico | 3.79 m2 (0.41 sqr.) |
| Total Area | 232.25 m2 (25.00 sqr.) |
| House Width | 11.00 m |
| House Length | 14.50 m |
| Minimum Block Width | 14.00 m |
| Room Dimensions | |
| Family-Dining | 4.80m x 5.49m |
| Master Bed | 3.15m x 4.93m |
| Guest Bed | 3.30m x 3.20m |
| Bed 2 | 3.00m x 3.40m |
| Bed 3 | 3.00m x 3.44m |
| Rumpus | 3.33m x 5.58m |
| Double Garage | 6.00m x 5.50m |
