DIMORA 45
From: $ 566,100
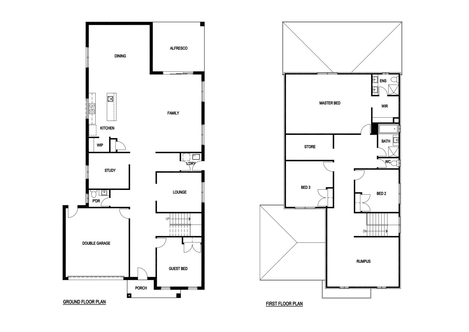
| Home Dimensions | |
| House Area | 357.21 m2 (38.45 sqr.) |
| Garage Area | 36.38 m2 (3.92 sqr.) |
| Portico | 5.24 m2 (0.56 sqr.) |
| Alfresco | 19.35 m2 (2.08 sqr.) |
| Total Area | 418.18 m2 (45.00 sqr.) |
| House Width | 12.30 m |
| House Length | 23.93 m |
| Minimum Block Width | 16.00 m |
| Room Dimensions | |
| Family | 6.74m x 4.50m |
| Dining | 4.30m x 5.32m |
| Master Bed | 5.15m x 7.43m |
| Guest Bed | 3.70m x 3.90m |
| Bed 2 | 3.70m x 3.20m |
| Bed 3 | 3.99m x 3.50m |
| Lounge | 3.44m x 3.90m |
| Rumpus | 4.30m x 6.23m |
| Double Garage | 6.00m x 5.50m |
