TIERRA 50
From: $ 612,342
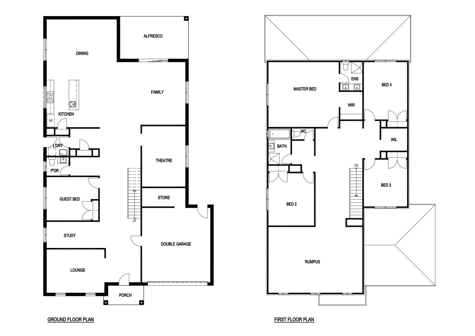
| Home Dimensions | |
| House Area | 404.75 m2 (43.56 sqr.) |
| Garage Area | 36.24 m2 (3.90 sqr.) |
| Portico | 4.69 m2 (0.50 sqr.) |
| Alfresco | 18.81 m2 (2.02 sqr.) |
| Total Area | 464.50 m2 (50.00 sqr.) |
| House Width | 13.63 m |
| House Length | 23.13 m |
| Minimum Block Width | 16.00 m |
| Room Dimensions | |
| Family | 5.05m x 5.50m |
| Dining | 3.42m x 5.65m |
| Master Bed | 5.23m x 5.67m |
| Guest Bed | 3.50m x 3.57m |
| Bed 2 | 4.22m x 3.69m |
| Bed 3 | 3.78m x 3.50m |
| Bed 4 | 4.63m x 3.50m |
| Lounge | 3.50m x 4.66m |
| Rumpus | 5.30m x 7.56m |
| Theatre | 4.87m x 3.50m |
| Double Garage | 6.00m x 5.50m |
