DIMORA 40
From: $ 527,487
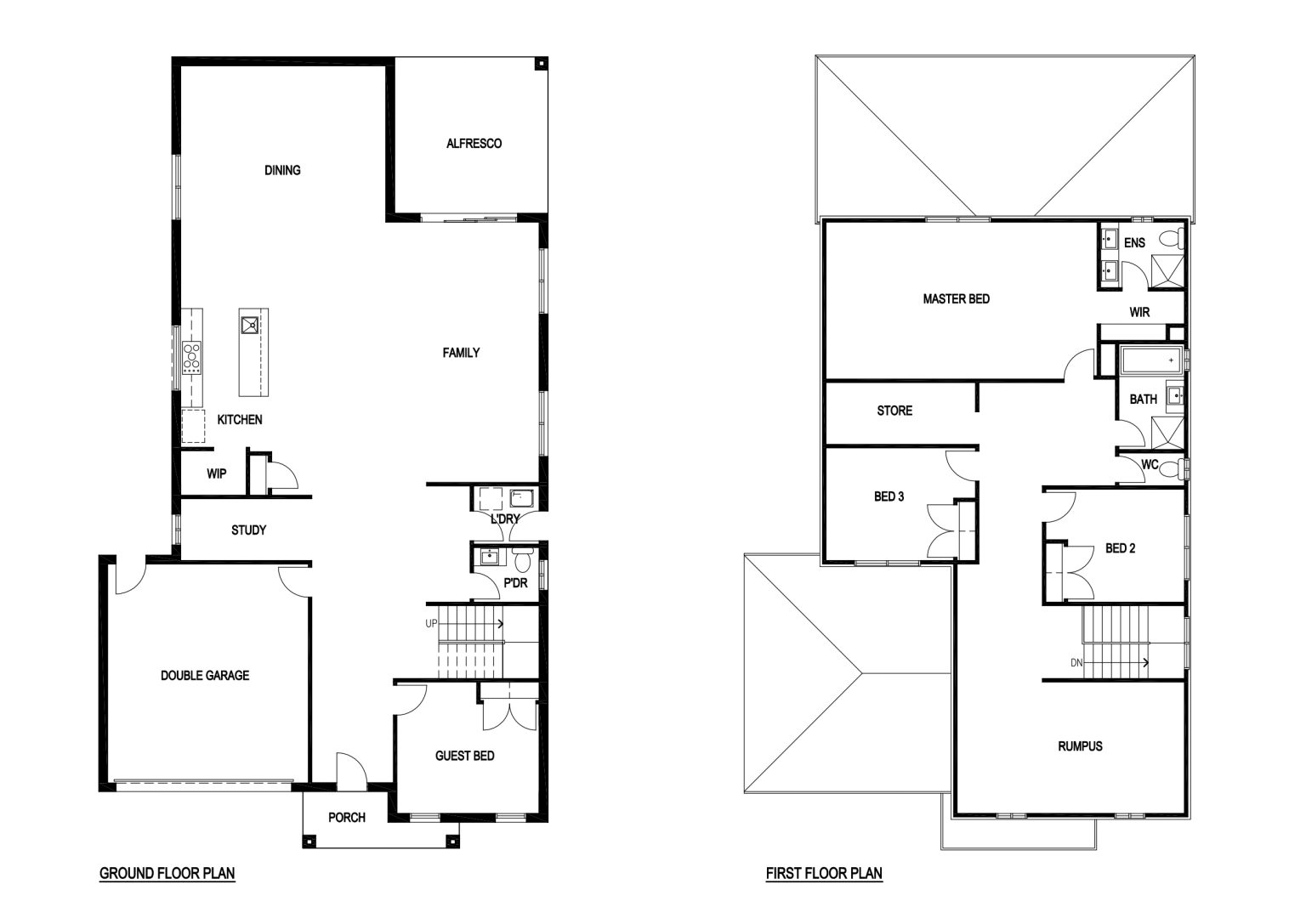
| Home Dimensions | |
| House Area | 312.36 m2 (33.62 sqr.) |
| Garage Area | 36.38 m2 (3.92 sqr.) |
| Portico | 4.9 m2 (0.52 sqr.) |
| Alfresco | 17.97 m2 (1.93 sqr.) |
| Total Area | 371.61 m2 (40.00 sqr.) |
| House Width | 12.30 m |
| House Length | 21.66 m |
| Minimum Block Width | 16.00 m |
| Room Dimensions | |
| Family | 7.13m x 4.20m |
| Dining | 4.28m x 5.62m |
| Master Bed | 4.30m x 7.43m |
| Guest Bed | 3.00m x 3.90m |
| Bed 2 | 3.10m x 3.20m |
| Bed 3 | 3.09m x 3.50m |
| Rumpus | 3.60m x 6.23m |
| Double Garage | 6.00m x 5.50m |
