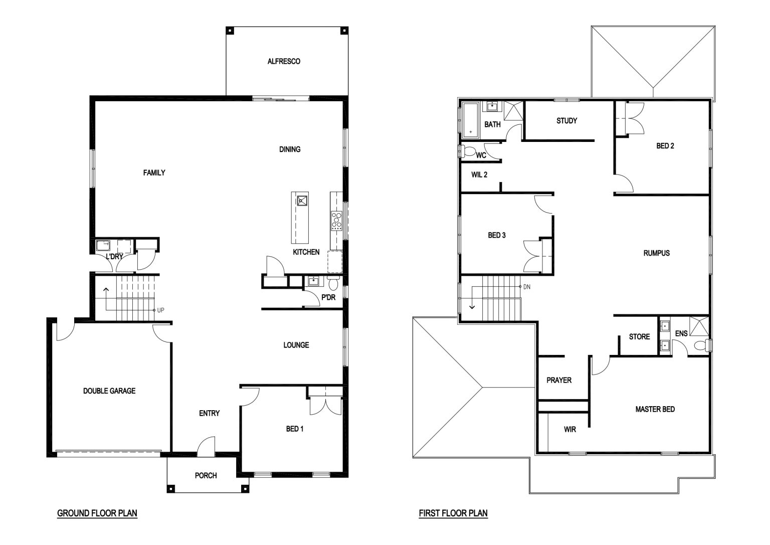
EDIFACE 45
From: $ 580,186
| Home Dimensions | |
| House Area | 357.94 m2 (38.53 sqr.) |
| Garage Area | 36.38 m2 (3.92 sqr.) |
| Portico | 5.72 m2 (0.61 sqr.) |
| Alfresco | 18.14 m2 (1.95 sqr.) |
| Total Area | 418.05 m2 (45.00 sqr.) |
| House Width | 14.00 m |
| House Length | 21.62 m |
| Minimum Block Width | 16.00 m |
| Room Dimensions | |
| Family | 6.33m x 5.76m |
| Dining | 4.22m x5.76m |
| Master Bed | 4.40m x 5.52m |
| Bed 1 | 3.39m x 4.71m |
| Bed 2 | 4.32m x 3.74m |
| Bed 3 | 3.71m x 3.63m |
| Lounge | 3.45m x 4.80m |
| Rumpus | 5.50m x 7.20m |
| Double Garage | 6.00m x 5.50m |
