HACIENDA 30
From: $ 452,820
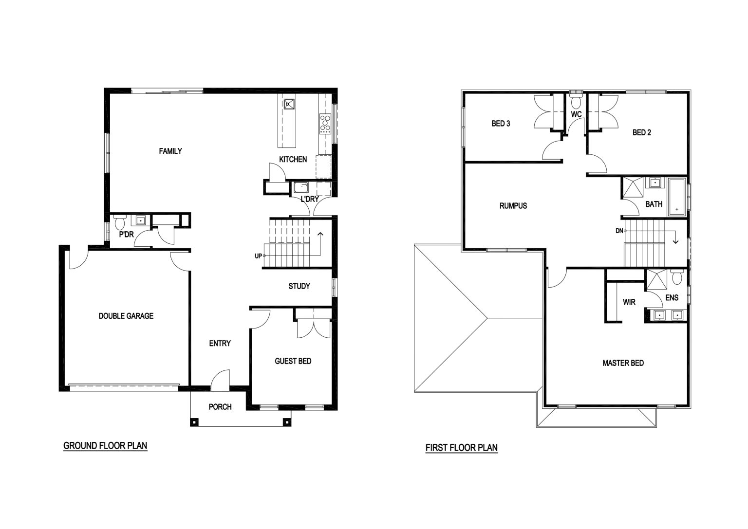
| Home Dimensions | |
| House Area | 237.24 m2 ( 25.54 sqr.) |
| Garage Area | 36.24 m2 (3.90 sqr.) |
| Portico | 5.24 m2 (0.56 sqr.) |
| Total Area | 278.70 m2 (30.00 sqr.) |
| House Width | 12.32 m |
| House Length | 14.97 m |
| Minimum Block Width | 16.00 m |
| Room Dimensions | |
| Family-Dining | 5.27m x 6.81m |
| Master Bed | 3.62m x 6.25m |
| Guest Bed | 3.77m x 3.56m |
| Bed 2 | 3.60m x 3.78m |
| Bed 3 | 3.00m x 3.78m |
| Rumpus | 3.77m x 5.37m |
| Double Garage | 6.00m x 5.50m |
