HARBOUR 30
From: $ 453,881
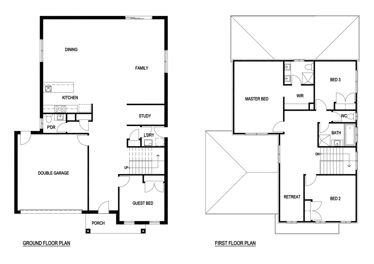
| Home Dimensions | |
| House Area | 272.51 m2 (29.33 sqr.) |
| Garage Area | 36.24 m2 (3.90 sqr.) |
| Portico | 5.32 m2 (0.57 sqr.) |
| Total Area | 278.70 m2 (30.00 sqr.) |
| House Width | 12 m |
| House Length | 17.05 m |
| Minimum Block Width | 14 m |
| Room Dimensions | |
| Family | 6.65m x 5.63m |
| Dining | 4.95m x 3.89m |
| Master Bed | 5.63m x 3.84m |
| Guest Bed | 3.00m x 3.54m |
| Bed 2 | 3.60m x 3.40m |
| Bed 3 | 3.19m x 3.20m |
| Double Garage | 6.00m x 5.50m |
