HACIENDA 55
From: $ 653,979
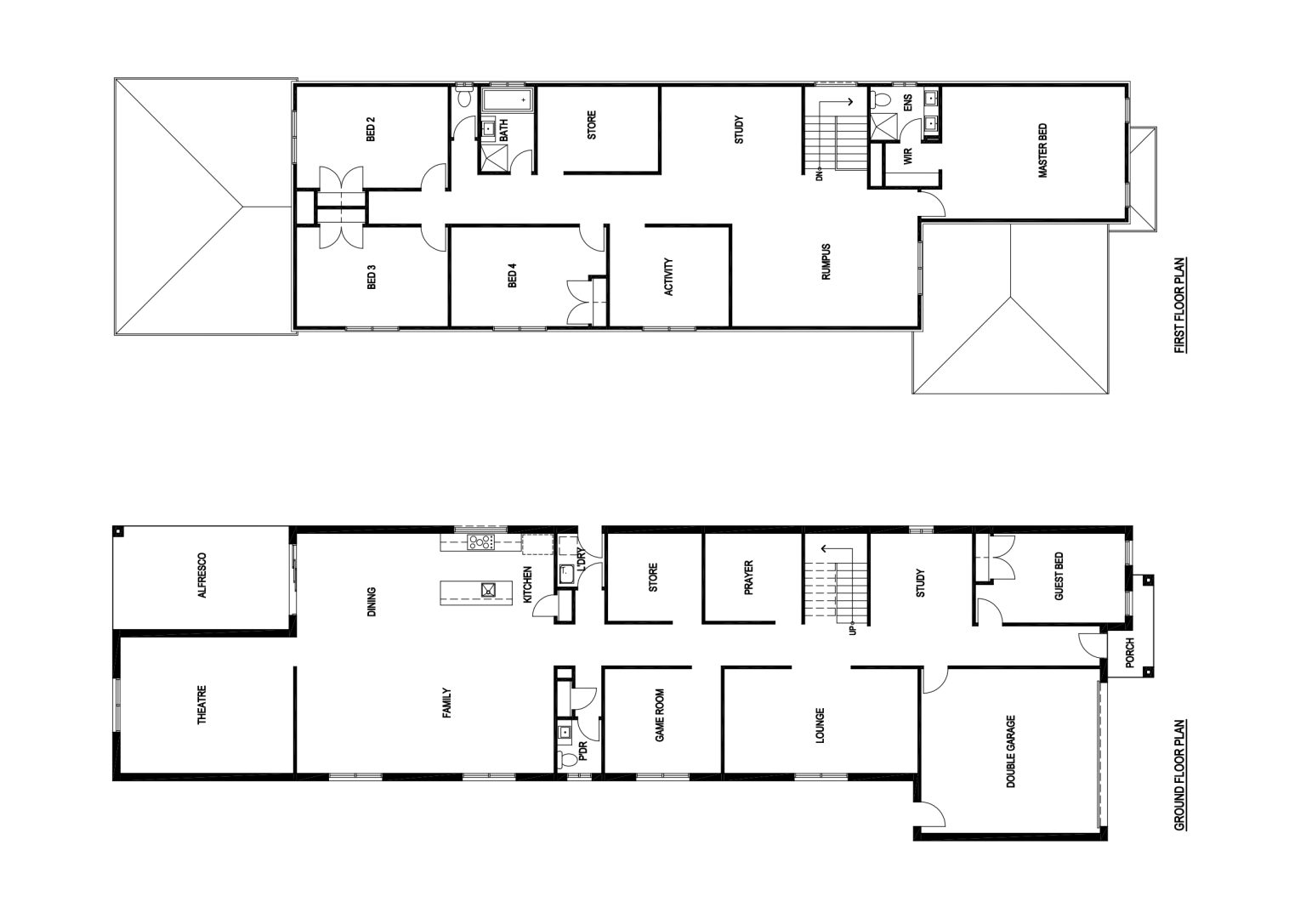
| Home Dimensions | |
| House Area | 450.57 m2 (48.50 sqr.) |
| Garage Area | 36.24 m2 (3.90 sqr.) |
| Portico | 3.74 m2 (0.40 sqr.) |
| Alfresco | 20.37 m2 (2.19 sqr.) |
| Total Area | 510.94 m2 (55.00 sqr.) |
| House Width | 10.50 m |
| House Length | 34.76 m |
| Minimum Block Width | 12.50 m |
| Room Dimensions | |
| Family | 8.61m x 3.49m |
| Dining | 4.81m x 4.53m |
| Lounge | 6.48m x 3.50m |
| Master Bed | 6.13m x 4.43m |
| Guest Bed | 4.50m x 3.00m |
| Bed 2 | 5.07m x 3.40m |
| Bed 3 | 5.07m x 3.33m |
| Theatre | 5.80m x 4.56m |
| Game Room | 3.90m x 3.50m |
| Rumpus | 6.22m x 5.08m |
| Double Garage | 6.00m x 5.50m |
