HOVEL 35
From: $ 422,284
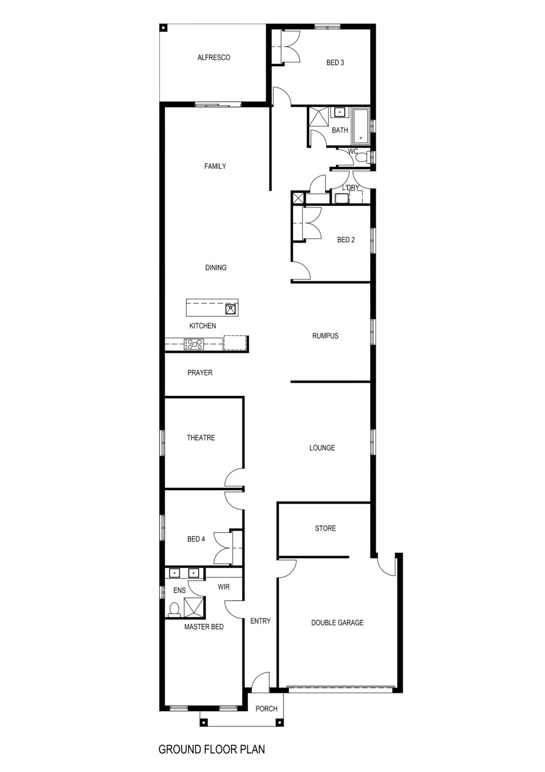
| Home Dimensions | |
| House Area | 267.18 m2 (28.77 sqr.) |
| Garage Area | 36.22 m2 (3.90 sqr.) |
| Portico | 4.14 m2 (0.44 sqr.) |
| Alfresco | 17.78 m2 (1.91 sqr.) |
| Total Area | 325.16 m2 (35.00 sqr.) |
| House Width | 11.26 m |
| House Length | 32.47 m |
| Minimum Block Width | 12.50 m |
| Room Dimensions | |
| Family | 4.44m X 4.85m |
| Dining | 4.43m X 5.84m |
| Lounge | 5.50m X 4.34m |
| Master Bed | 4.00m X 3.60m |
| Bed 2 | 3.50m X 3.00m |
| Bed 3 | 3.50m X 3.99m |
| Bed 4 | 3.50m x 3.00m |
| Theatre | 4.16m X 3.60m |
| Rumpus | 4.50m X 3.69m |
| Double Garage | 6.00m X 5.50m |
