TIEERA 50
From: $ 609,162
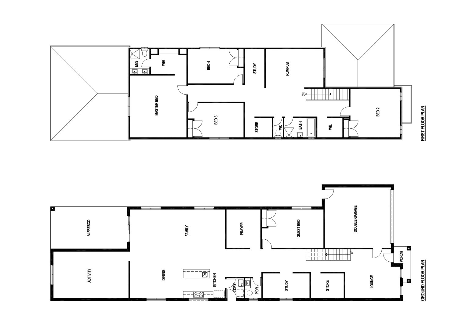
| Home Dimensions | |
| House Area | 398.37 m2 (42.88 sqr.) |
| Garage Area | 36.24 m2 (3.90 sqr.) |
| Portico | 3.65 m2 (0.39 sqr.) |
| Alfresco | 26.28 m2 (2.82 sqr.) |
| Total Area | 464.54 m2 (50.00 sqr.) |
| House Width | 10.50 m |
| House Length | 32.52 m |
| Minimum Block Width | 12.50 m |
| Room Dimensions | |
| Family | 8.63m x 3.59m |
| Dining | 4.83m x 3.38m |
| Lounge | 5.00m x 2.85m |
| Master Bed | 5.14m x 5.63m |
| Guest Bed | 5.00m x 3.50m |
| Bed 2 | 4.52m x 4.43m |
| Bed 3 | 4.46m x 3.14m |
| Bed 4 | 4.46m x 3.14m |
| Activity | 6.81m x 4.21m |
| Rumpus | 5.24m x 3.50m |
| Double Garage | 6.00m x 5.50m |
