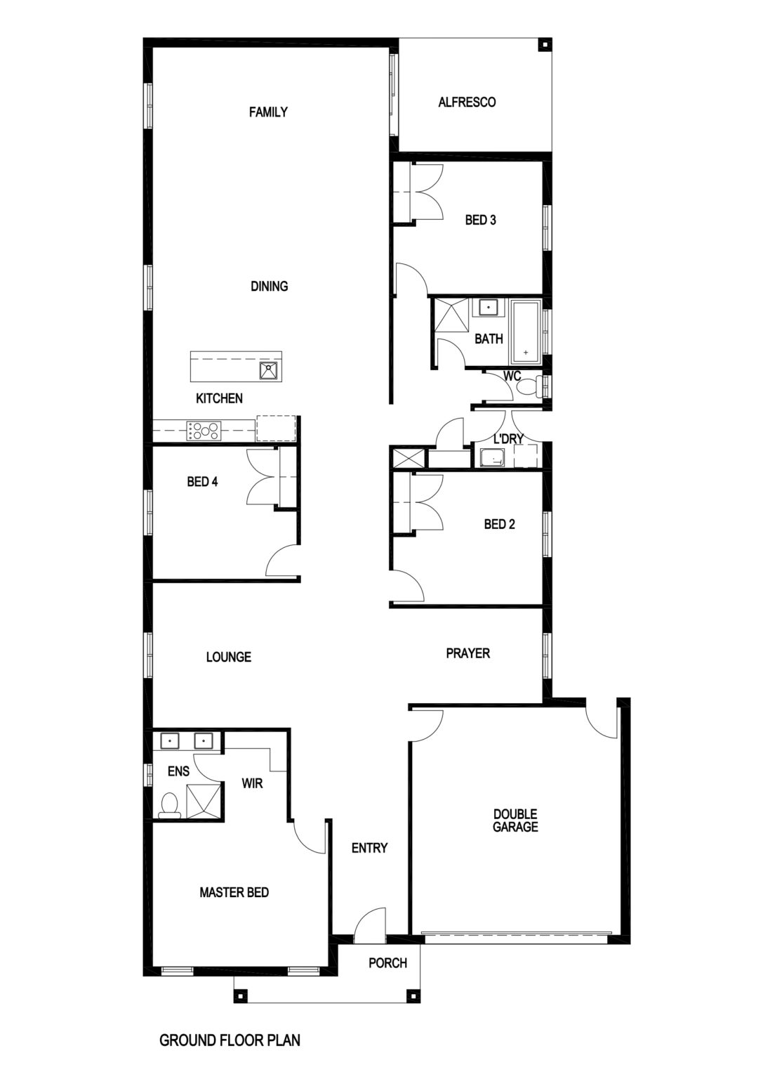
HOVEL 30
| Home Dimensions | |
| House Area | 225.10 m2 (24.23 sqr.) |
| Garage Area | 36.22 m2 (3.90 sqr.) |
| Portico | 5.30 m2 (0.57 sqr.) |
| Alfresco | 12.09 m2 (1.30 sqr.) |
| Total Area | 278.75 m2 (30.00 sqr.) |
| House Width | 12.80 m |
| House Length | 25.37 m |
| Minimum Block Width | 14.00 m |
| Room Dimensions | |
| Family | 5.00m X 6.23m |
| Dining | 3.00m X 6.23m |
| Lounge | 3.82m X 3.89m |
| Master Bed | 3.80m X 4.63m |
| Bed 2 | 3.50m X 3.34m |
| Bed 3 | 3.50m X 3.34m |
| Bed 4 | 3.50m X 3.20m |
| Prayer | 2.51m x 3.53m |
| Double Garage | 6.00m X 5.50m |
