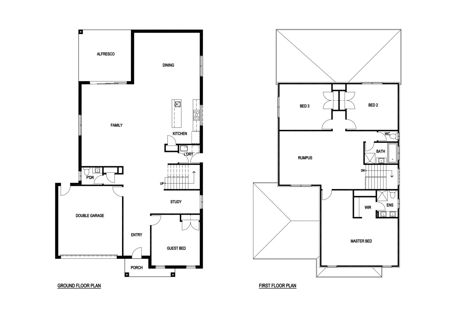
HACIENDA 40
From: $ 537,846
| Home Dimensions | |
| House Area | 310.83 m2 ( 33.46 sqr.) |
| Garage Area | 36.24 m2 (3.90 sqr.) |
| Portico | 4.72 m2 (0.51 sqr.) |
| Alfresco | 19.84 m2 (2.13 sqr.) |
| Total Area | 371.67 m2 (40.00 sqr.) |
| House Width | 12.64 m |
| House Length | 21.14 m |
| Minimum Block Width | 16.00 m |
| Room Dimensions | |
| Family | 7.03m x 4.50m |
| Dining | 5.73m x 6.14m |
| Master Bed | 4.06m x 6.57m |
| Guest Bed | 3.85m x 4.17m |
| Bed 2 | 3.93m x 4.40m |
| Bed 3 | 3.93m x 4.47m |
| Rumpus | 4.60m x 7.22m |
| Double Garage | 6.00m x 5.50m |
