EDIFACE 45
From: $ 577,803
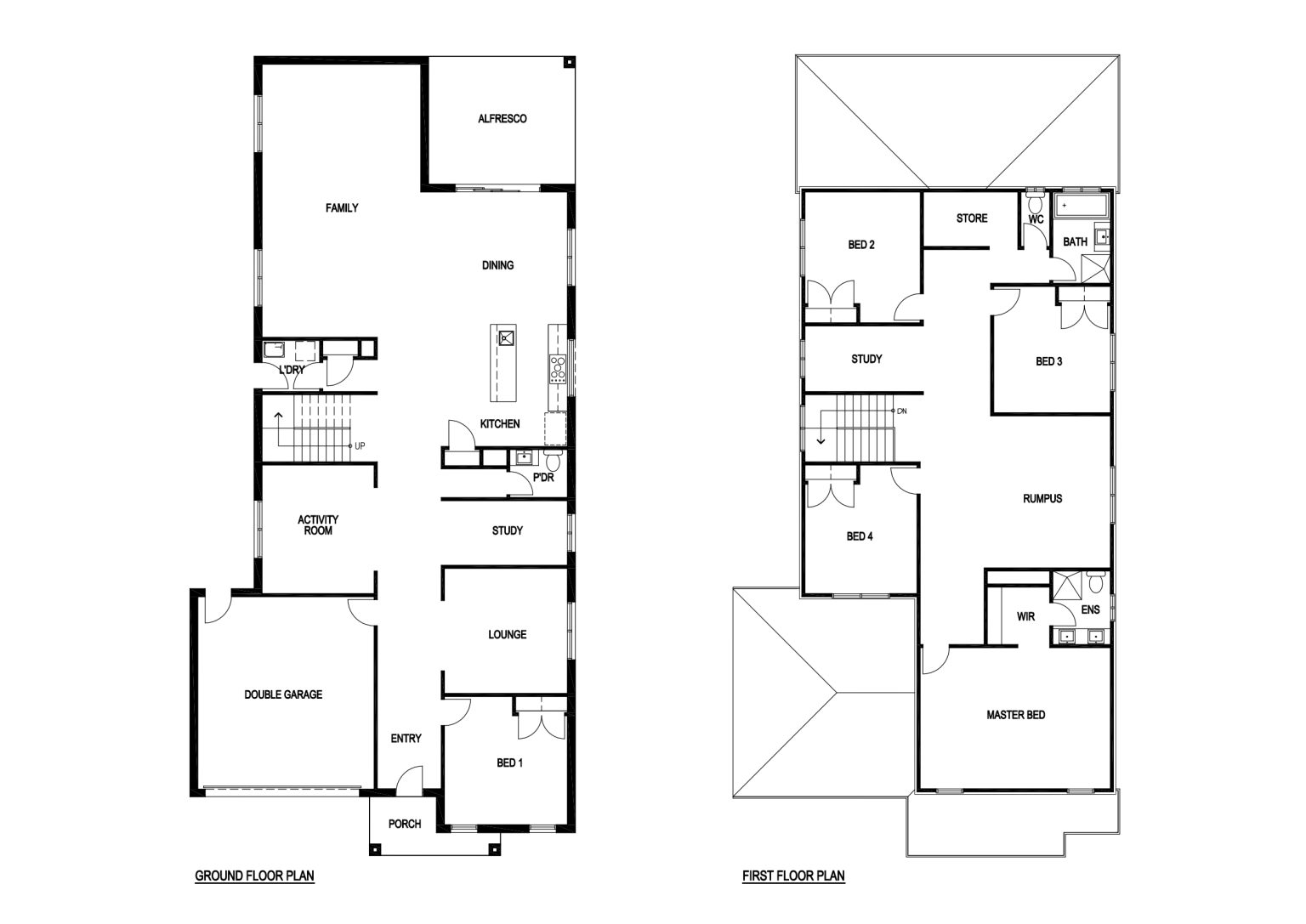
| Home Dimensions | |
| House Area | 358.38 m2 (38.58sqr.) |
| Garage Area | 36.24 m2 (3.90 sqr.) |
| Portico | 5.24 m2 (0.56 sqr.) |
| Alfresco | 18.19 m2 (1.96 sqr.) |
| Total Area | 418.05 m2 (45.00 sqr.) |
| House Width | 12.00 m |
| House Length | 24.88 m |
| Minimum Block Width | 14.00 m |
| Room Dimensions | |
| Family | 8.51m x 4.95m |
| Dining | 4.13m x 4.57m |
| Lounge | 3.90m x 3.84m |
| Master Bed | 4.40m x 5.93m |
| Bed 1 | 3.40m x 3.84m |
| Bed 2 | 3.48m x 3.60m |
| Bed 3 | 3.34m x 3.64m |
| Bed 4 | 3.41m x 3.50m |
| Activity Room | 4.01m x 3.50m |
| Rumpus | 4.74m x 5.93m |
| Double Garage | 6.00m x 5.50m |
