HARBOUR 45
From: $ 578,283
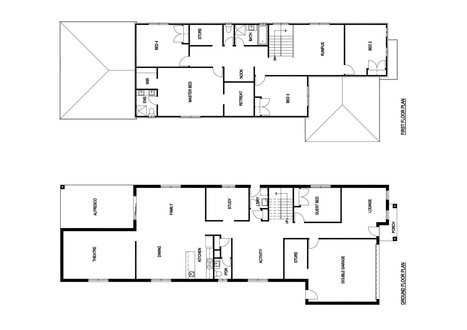
| Home Dimensions |
| House Area | 353.98 m2 (38.10 sqr.) |
| Garage Area | 36.24 m2 (3.90 sqr.) |
| Portico | 3.46 m2 (0.39 sqr.) |
| Alfresco | 24.35 m2 (2.62 sqr.) |
| Total Area | 418.04 m2 (45.00 sqr.) |
| House Width | 10.50 m |
| House Length | 29.52 m |
| Minimum Block Width | 12.50 m |
| Room Dimensions |
| Family | 6.05m x 2.95m |
| Dining | 4.35m x 3.89m |
| Master Bed | 5.74m x 4.24m |
| Guest Bed | 3.50m x 3.00m |
| Bed 2 | 3.60m x 3.83m |
| Bed 3 | 4.00m x 3.50m |
| Bed 4 | 4.00m x 3.69m |
| Lounge | 3.90m x 3.04m |
| Activity | 4.48m x 3.59m |
| Theatre | 6.32m x 4.22m |
| Retreat | 2.59m x 2.95m |
| Rumpus | 4.44m x 4.43m |
| Double Garage | 6.00m x 5.50m |