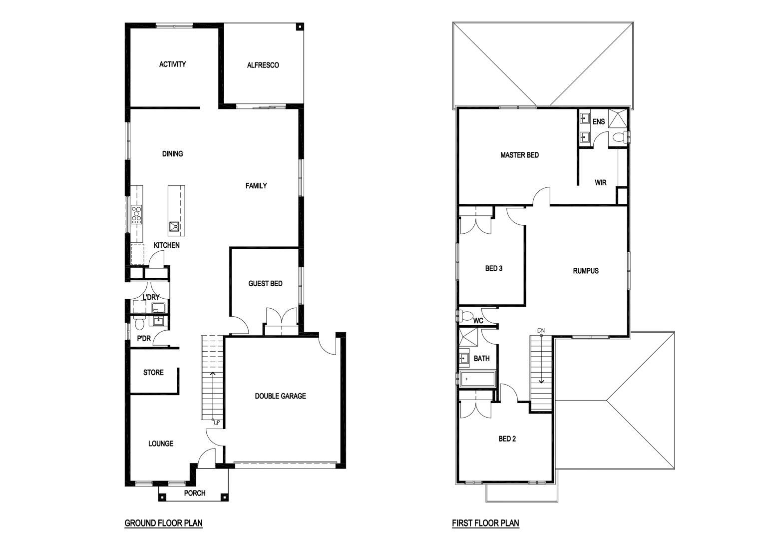
| Home Dimensions | |
| House Area | 270.62m2 (29.13 sqr.) |
| Garage Area | 36.24 m2 (3.90 sqr.) |
| Portico | 3.65 m2 (0.39 sqr.) |
| Alfresco | 14.63 m2 (1.57 sqr.) |
| Total Area | 325.14 m2 (35.00 sqr.) |
| House Width | 10.50 m |
| House Length | 22.73 m |
| Minimum Block Width | 12.50 m |
| Room Dimensions | |
| Family | 6.56m x 3.29m |
| Dining | 3.65m x 3.38m |
| Lounge | 4.10m x 2.85m |
| Master Bed | 4.54m x 5.63m |
| Guest Bed | 3.53m x 3.20m |
| Bed 2 | 3.72m x 4.43m |
| Bed 3 | 4.08m x 3.10m |
| Activity | 3.75m x 4.21m |
| Rumpus | 6.15m x 3.59m |
| Double Garage | 6.00m x 5.50m |