
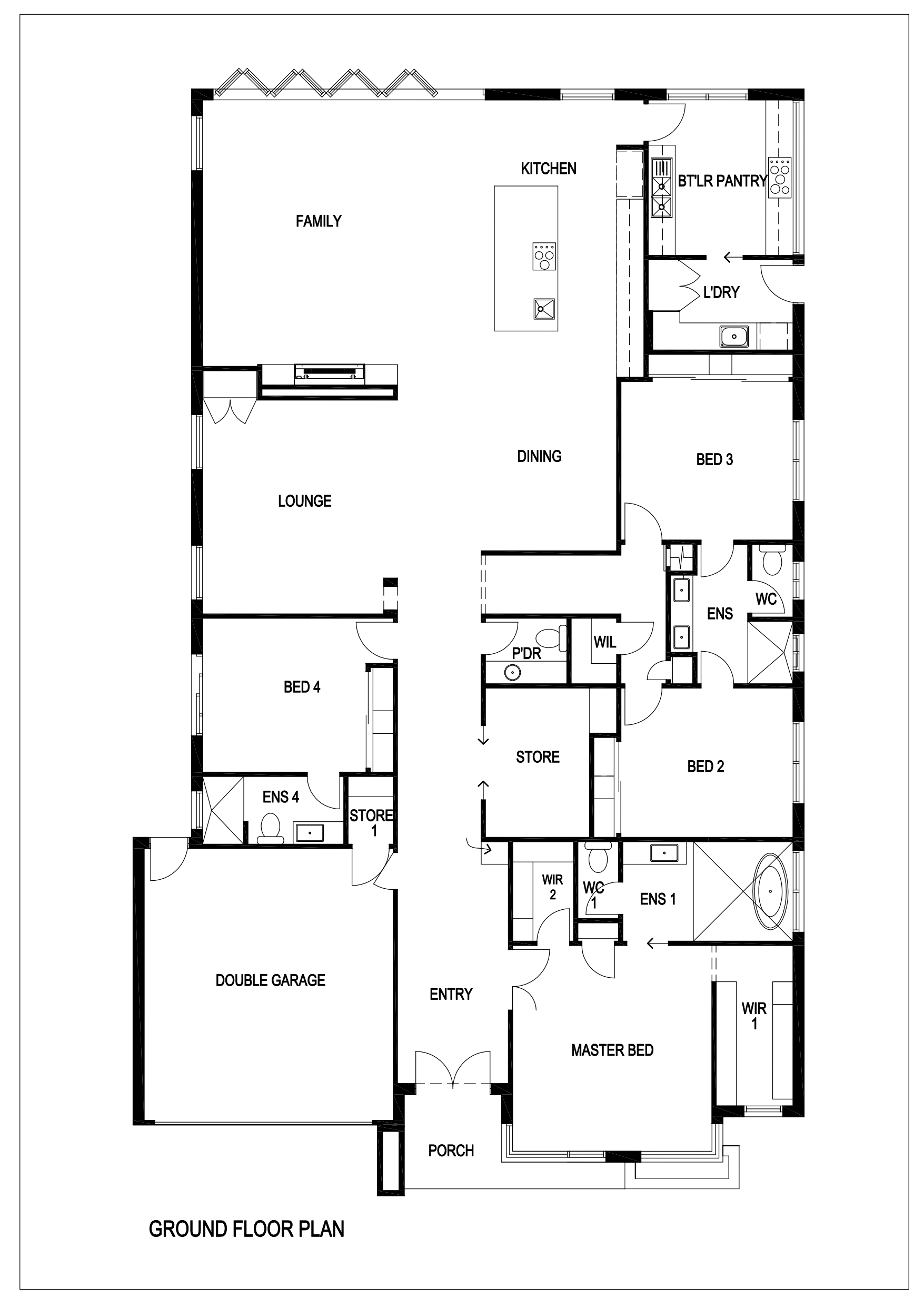
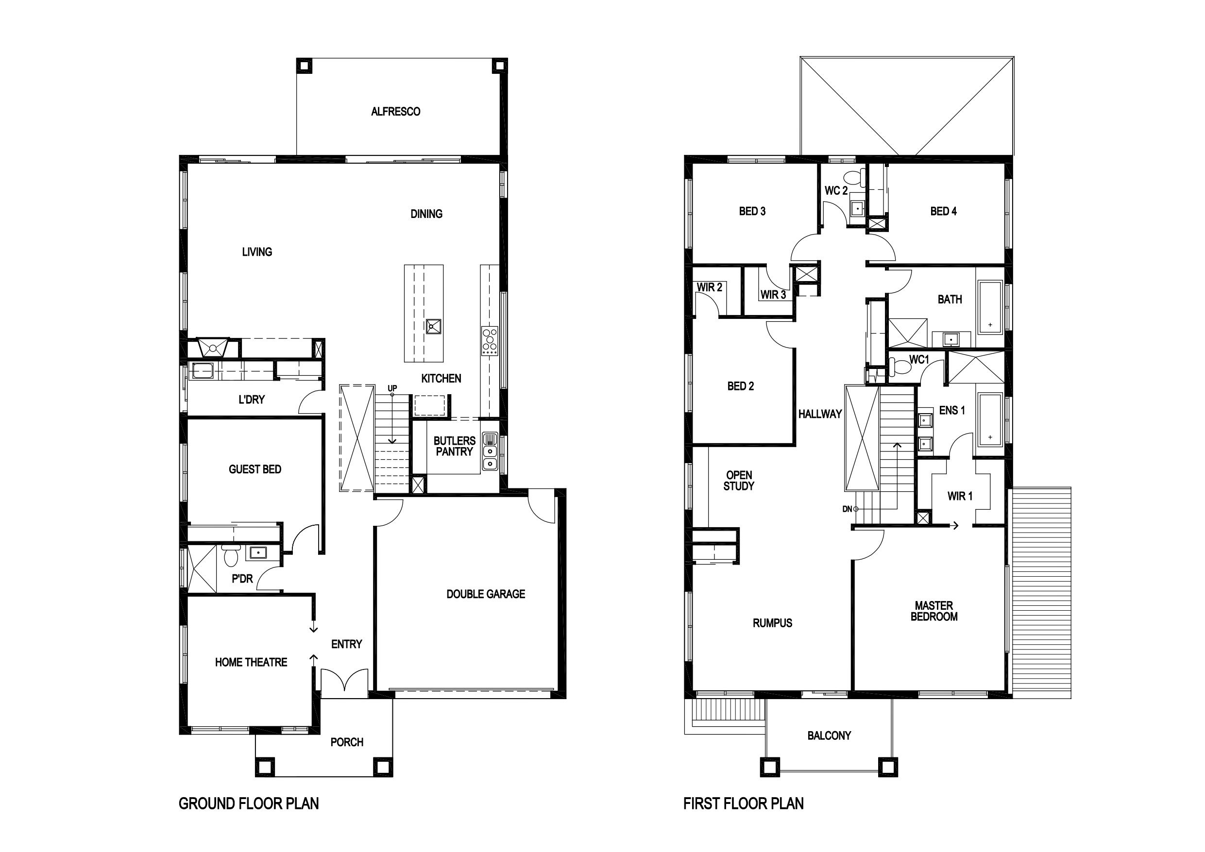
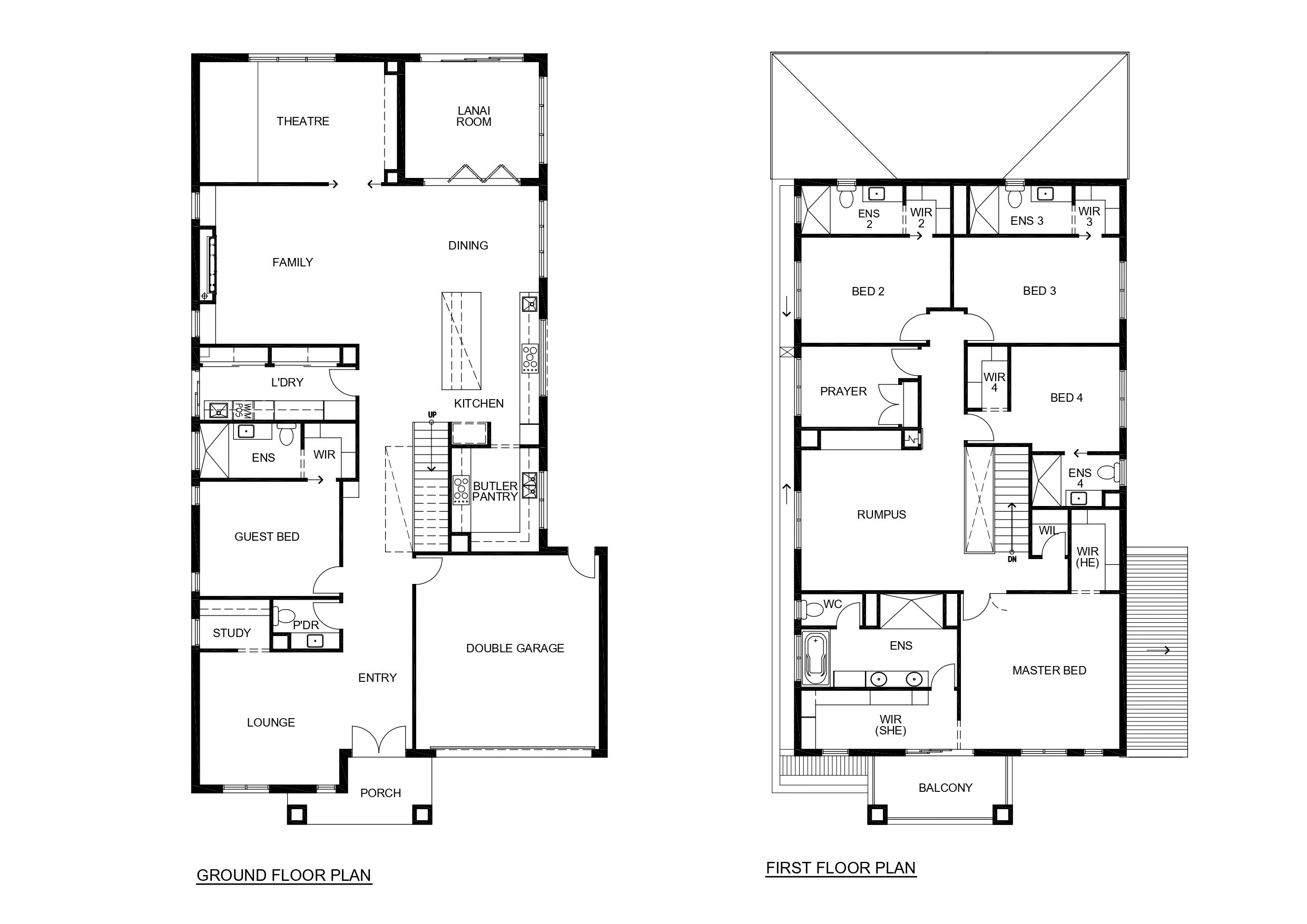
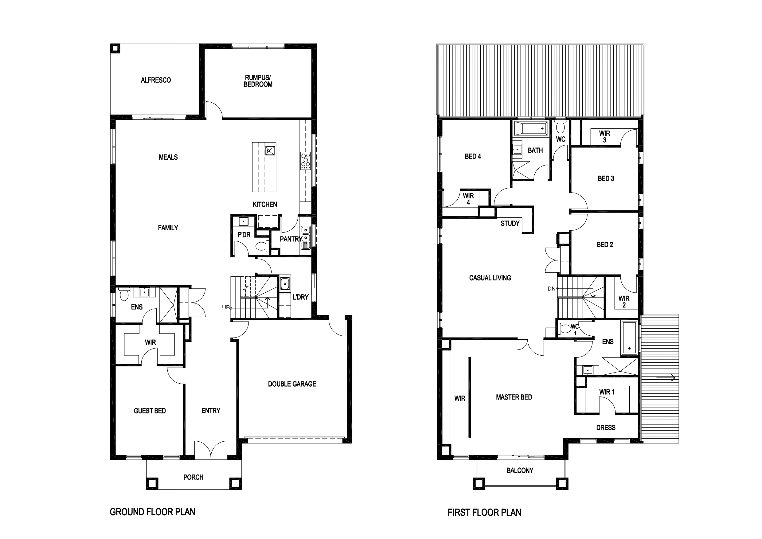
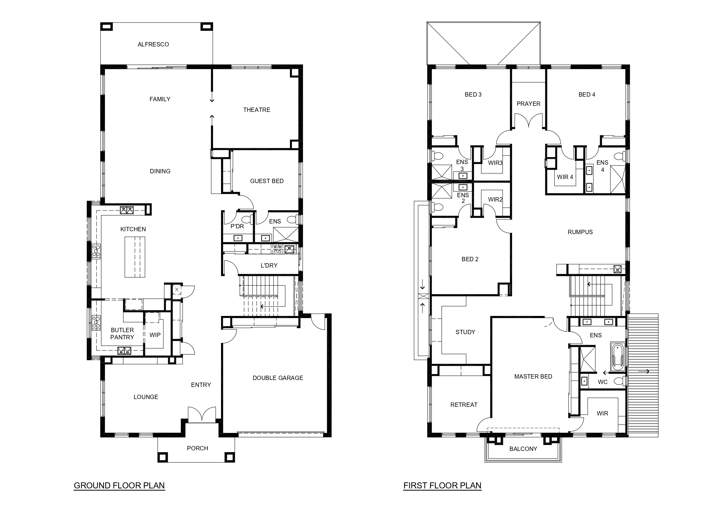
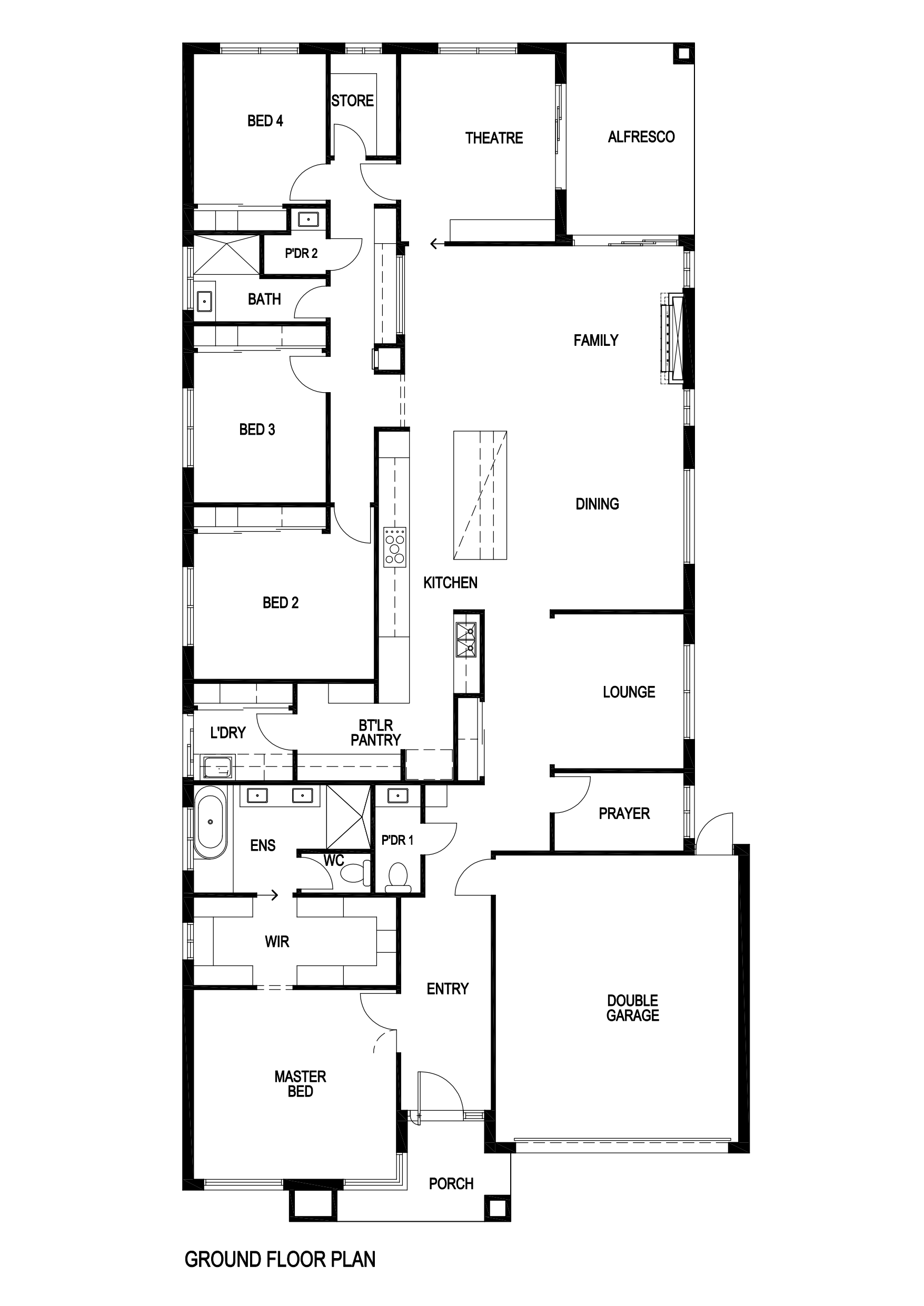
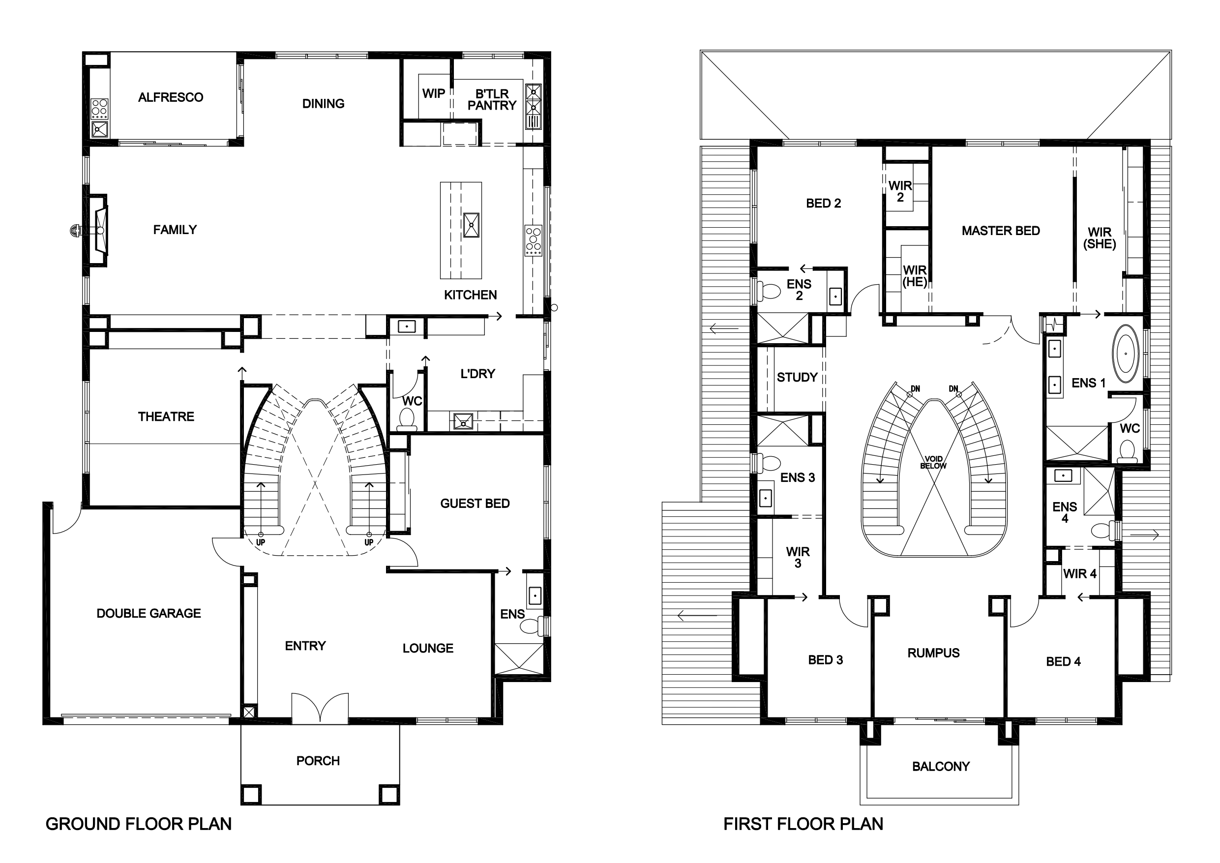
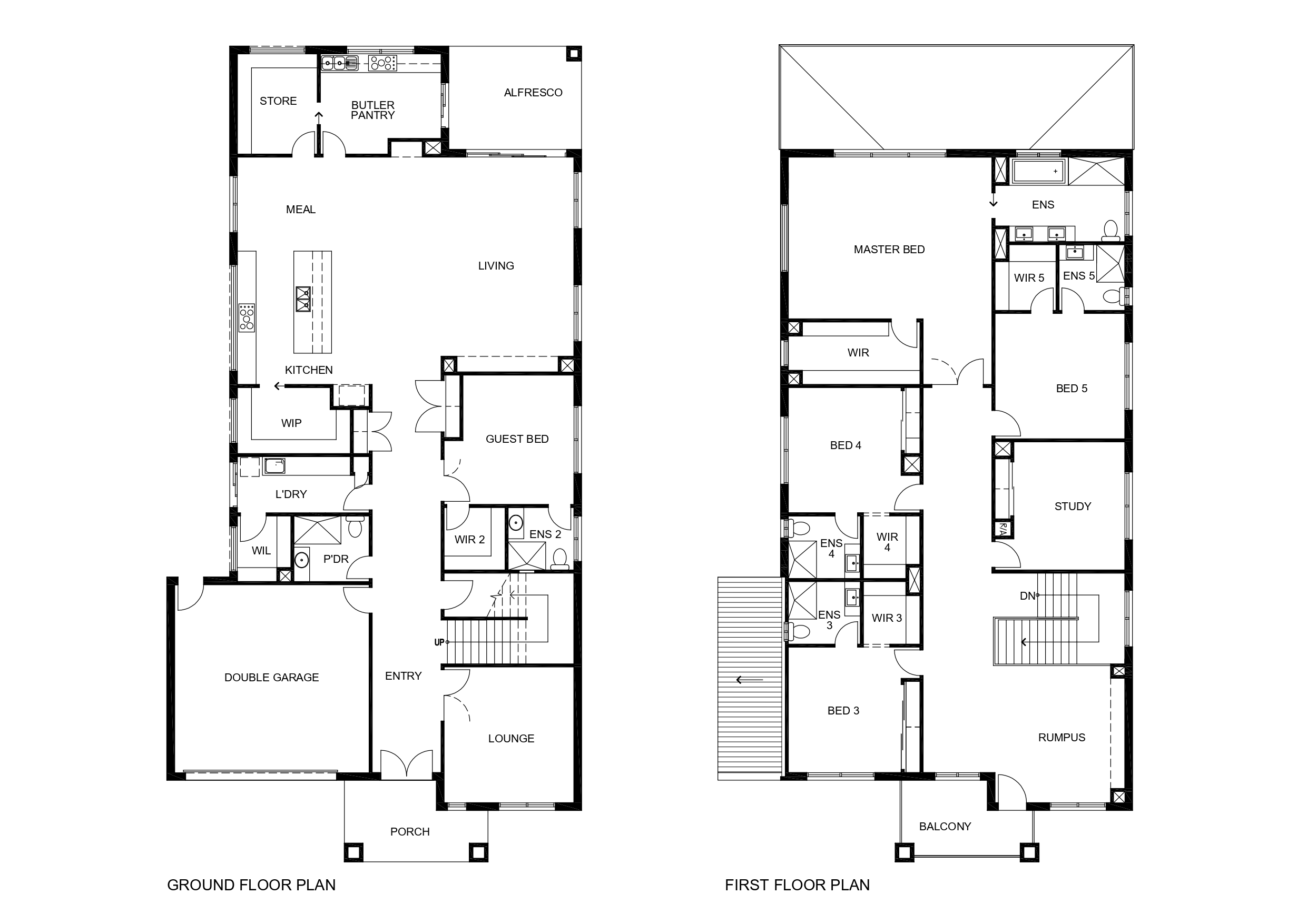
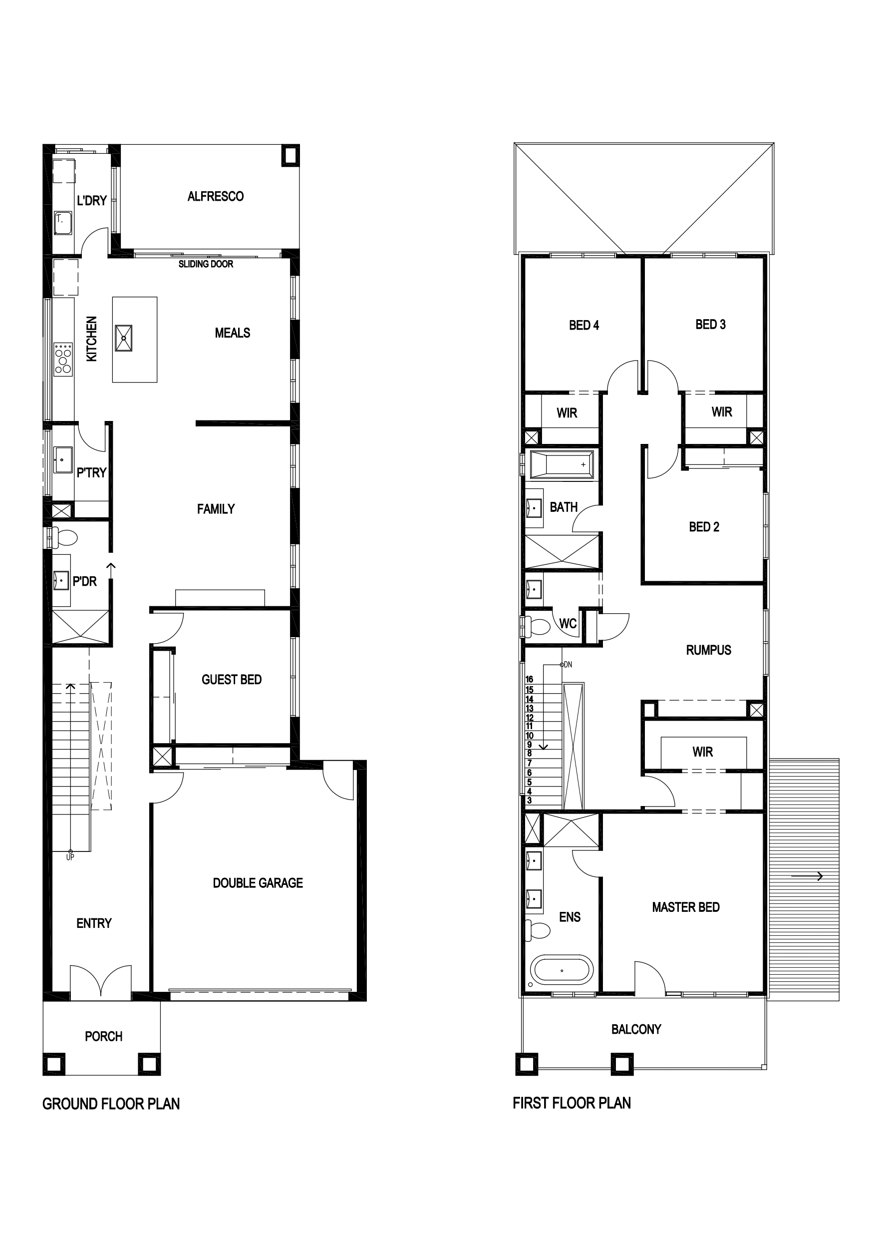
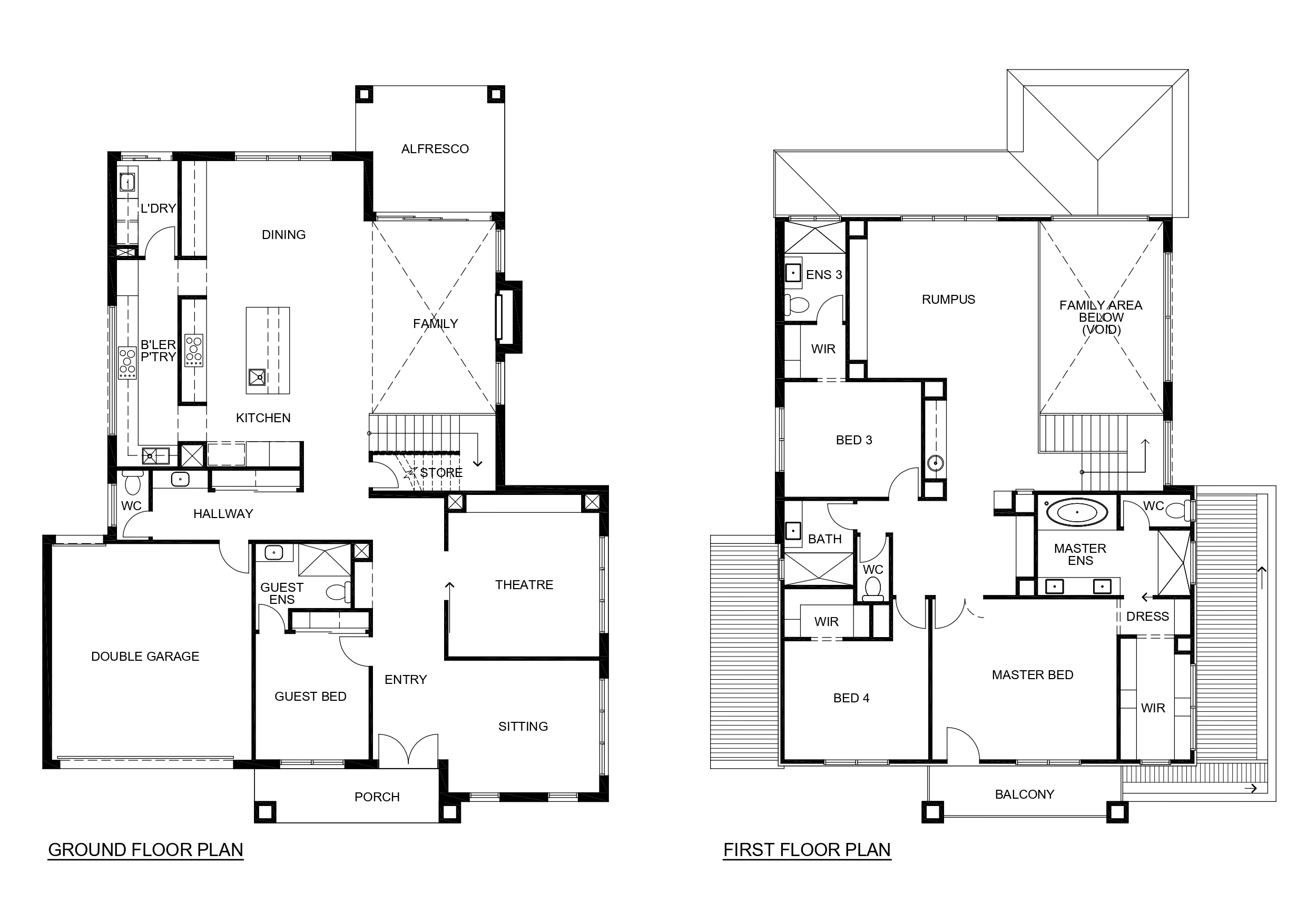
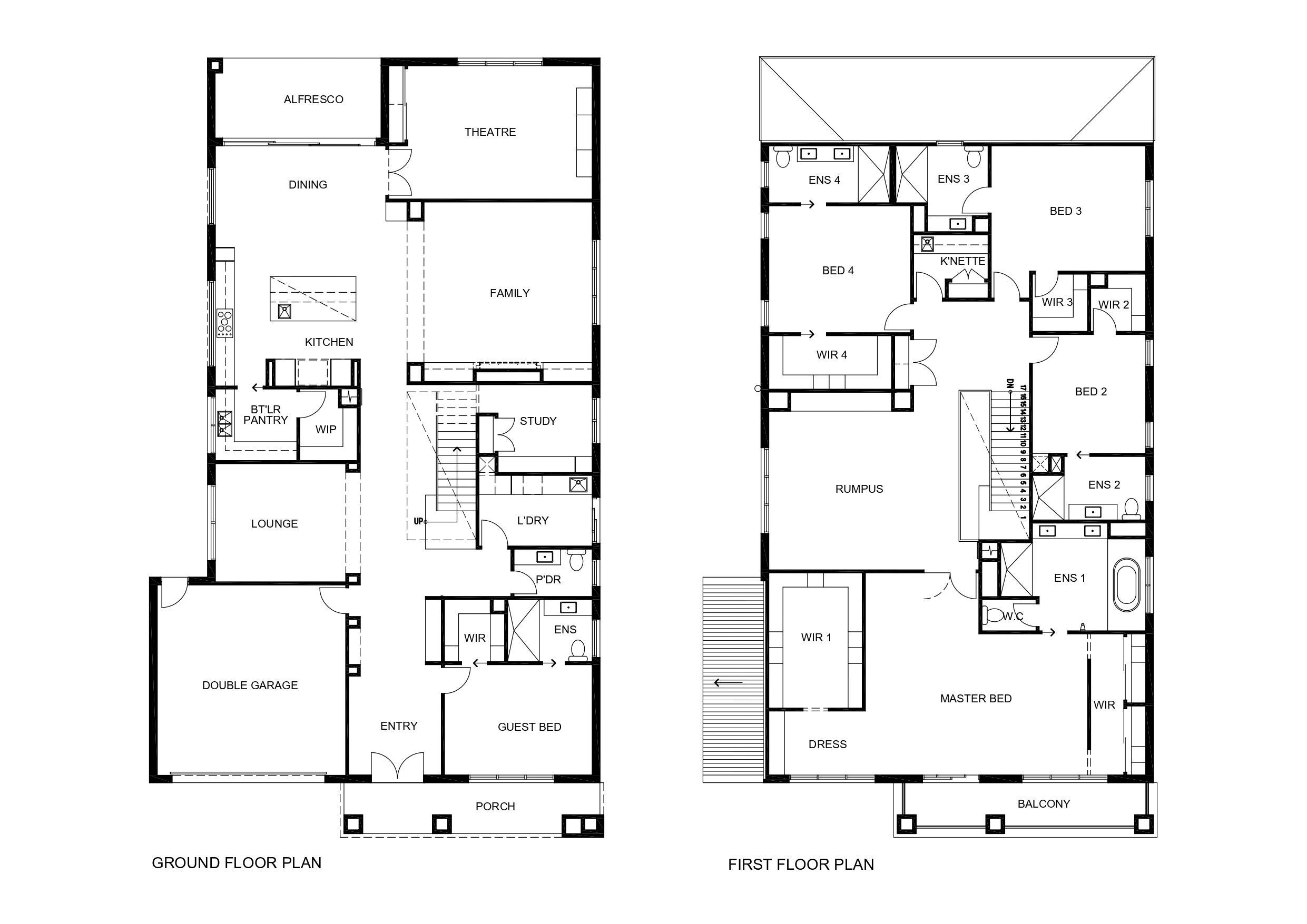
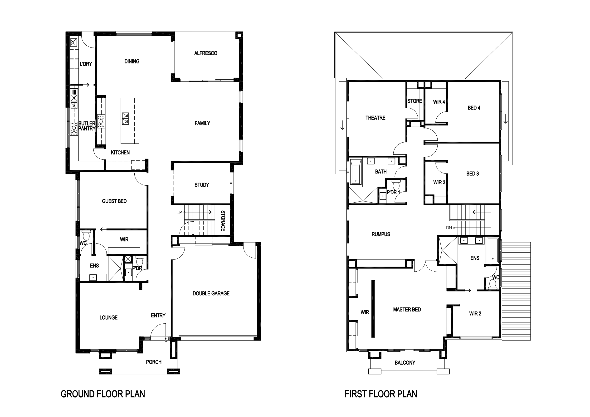
CUSTOM HOMES
Custom Home can only be achieved as per your satisfaction if you are working with a team who understand what you are trying to build and works for your family. At the same time budget is the most important thing as well. We are proud to boast our success in this segment of our business. Our clients have been really satisfied with our Commitment, Knowledge, Experience, Hard work and Devotion towards the job. We assure we will build as per your needs in a very competitive price.
