SUNNYHILL
From: $ 582821
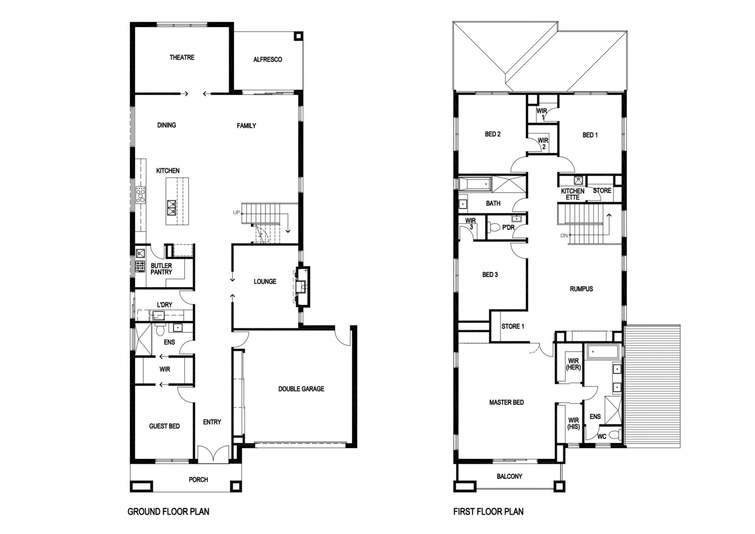
| Home Dimensions |
| House Area | 352.93 m2 (37.99 sqr.) |
| Garage Area | 41.32 m2 (4.45 sqr.) |
| Portico | 8.85 m2 (0.95 sqr.) |
| Alfresco | 11.34 m2 (1.22 sqr.) |
| Balcony | 7.96 m2 (0.86 sqr.) |
| Total Area | 422.40m2 (45.47 sqr.) |
| House Width | 12.00 m |
| House Length | 24.87 m |
| Minimum Block Width | 14.00 m |
| Minimum Block Depth | 31.85 m |
| Room Dimensions |
| Family | 5.79m x 4.63m |
| Dining | 3.40m x 3.18m |
| Lounge | 4.40m x 3.45m |
| Theatre | 3.50m x 5.00m |
| Master Bed | 6.14m x 5.13m |
| Guest Bed | 3.90m x 3.09m |
| Bed 1 | 4.20m x 3.32m |
| Bed 2 | 4.20m x 3.60m |
| Bed 3 | 3.61m x 3.60m |
| Rumpus | 4.63m x 4.98m |
| Double Garage | 6.00m x 5.70m |