HAVEN
From: $ 510,901
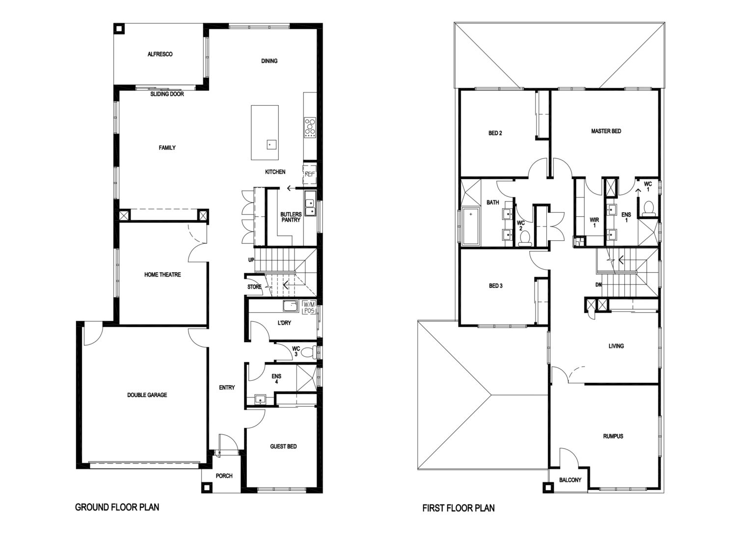
| Home Dimensions |
| House Area | 274.21 m2 (29.52 sqr.) |
| Garage Area | 36.47 m2 (3.93 sqr.) |
| Portico | 2.61 m2 (0.28 sqr.) |
| Alfresco | 10.70 m2 (1.15 sqr.) |
| Balcony | 1.97 m2 (0.21 sqr.) |
| Total Area | 325.96 m2 (35.09 sqr.) |
| House Width | 10.85 m |
| House Length | 20.67 m |
| Minimum Block Width | 12.50 m |
| Minimum Block Depth | 28.10 m |
| Room Dimensions |
| Family | 5.72m x 3.95m |
| Dining | 3.37m x 4.77m |
| Home Theatre | 4.50m x 3.86m |
| Master Bed | 3.96m x 3.52m |
| Guest Bed | 3.53m x 3.11m |
| Bed 2 | 3.80m x 3.30m |
| Bed 3 | 3.33m x 3.26m |
| Living | 3.10m x 4.77m |
| Rumpus | 4.51m x 4.77m |
| Double Garage | 6.01m x 5.51m |