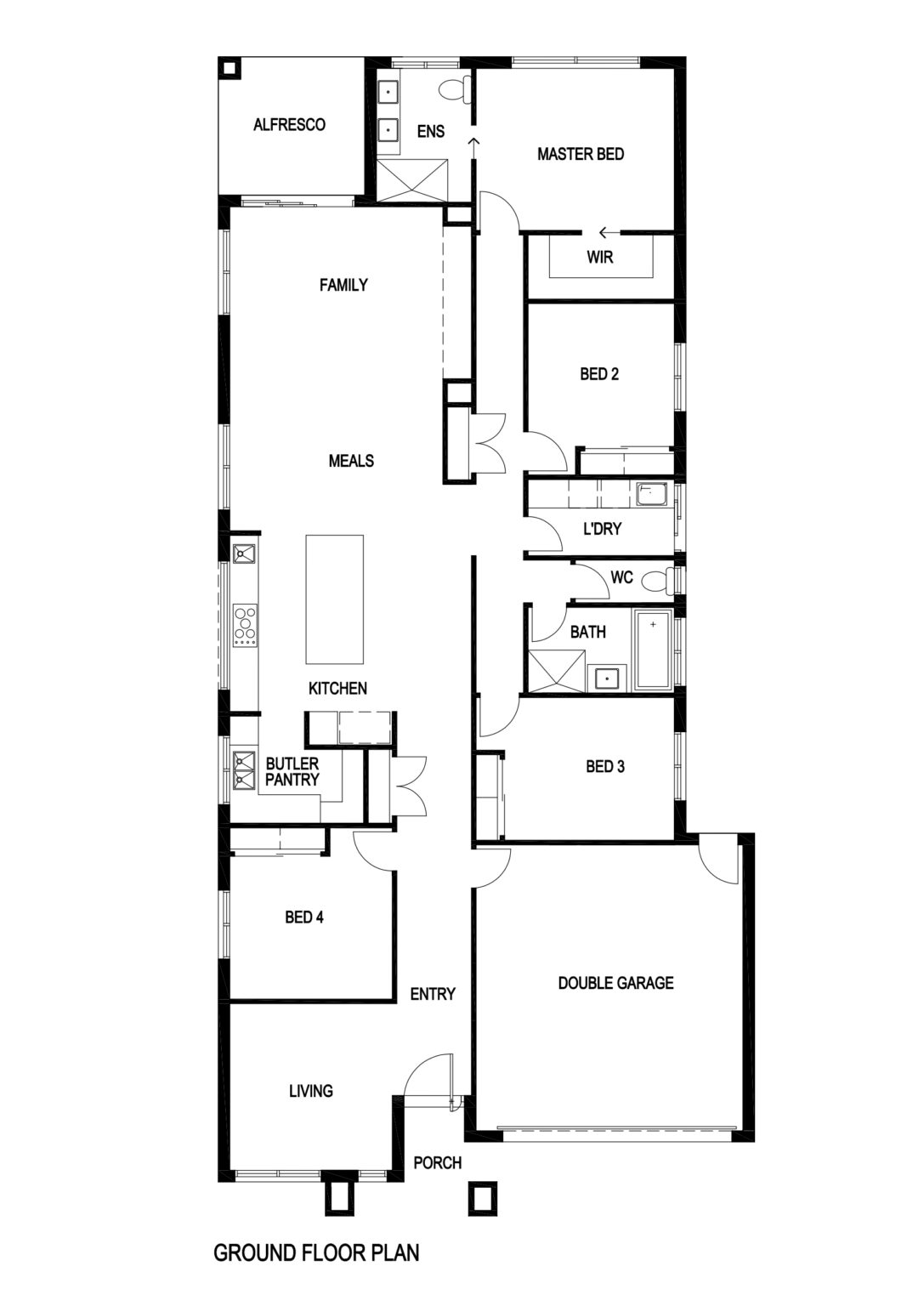
KASTEEL
From: $ 367,862
| Home Dimensions | |
| House Area | 188.79m2 (20.32sqr.) |
| Garage Area | 36.90m2 (3.97sqr.) |
| Portico | 5.11m2 (0.55 sqr.) |
| Alfresco | 8.90m2 (0.96 sqr.) |
| Total Area | 239.70 m2 (25.80sqr.) |
| House Width | 11.24m |
| House Length | 24.30m |
| Minimum Block Width | 12.50 m |
| Minimum Block Depth | 32.00 m |
| Room Dimensions | |
| Family | 3.44m x 4.47m |
| Meals | 3.43m x 4.47m |
| Lounge | 3.50m x 3.41m |
| Master Bed | 3.40m x 4.16m |
| Bed 2 | 3.20m x 3.49m |
| Bed 3 | 3.00m x 3.56m |
| Bed 4 | 3.00m x 3.41m |
| Double Garage | 6.00m x 5.60m |
