




CHAO
From: $ 377,242
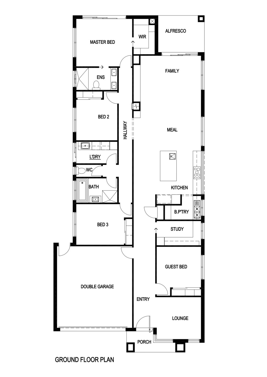
| Home Dimensions | |
| House Area | 189.73m2 (20.42 sqr.) |
| Garage Area | 36.22 m2 (3.90 sqr.) |
| Portico | 4.69m2 (0.50 sqr.) |
| Alfresco | 9.15m2 (0.98 sqr.) |
| Total Area | 239.79 m2 (25.81 sqr.) |
| House Width | 11.04 m |
| House Length | 24.69 m |
| Minimum Block Width | 12.60 m |
| Minimum Block Depth | 32.00 m |
| Room Dimensions | |
| Family | 3.50m x 4.45m |
| Meals | 3.49m x 4.45m |
| Lounge | 3.10m x 3.26m |
| Master Bed | 3.50m x 4.11m |
| Guest Bed | 3.00m x 3.26m |
| Bed 2 | 3.00m x 3.02m |
| Bed 3 | 3.00m x 3.51m |
| Double Garage | 6.01m x 5.50m |
