
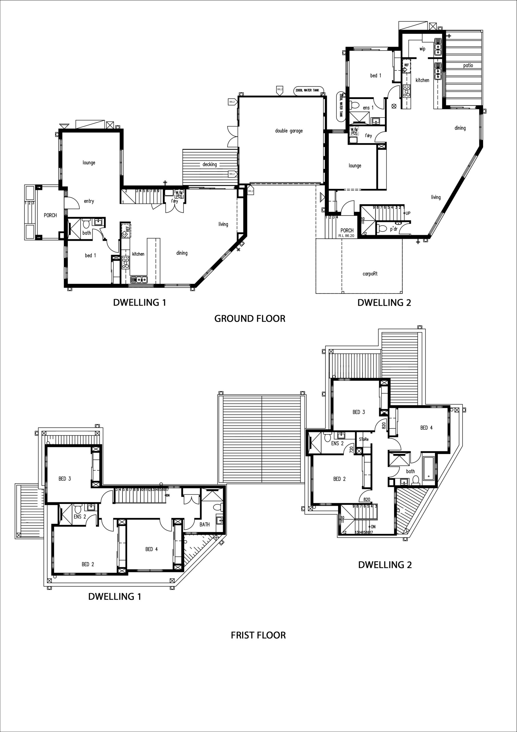
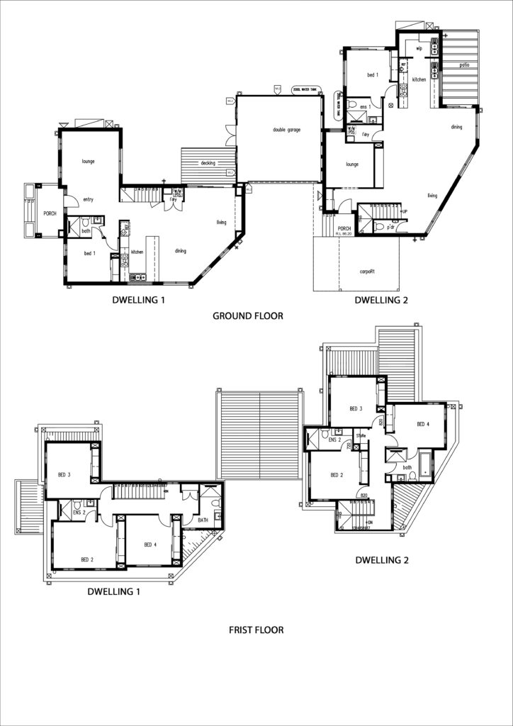
TOWN HOUSES
Town houses or Multiunit houses are basically having multi dwelling on single Title. That means, Single title is sub divided on multi tittles. By the permission of Australian Authorities client can divide single tittle to sub titles to achieve multiunit houses. Melvic offers different packages to build townhouses as per client’s requirement and convenience. Our experts helps you to choose best options to build your investment with most feasible results.









